
Crozilla.com
Home Finder d.o.o.
+38 ···
Nr. anzeigenPreise & Kosten
Provision für Käufer
Bitte beachte, das Angebot kann bei Vertragsabschluss die Zahlung einer Provision beinhalten. Weitere Informationen erhältst Du vom Anbieter.
Die Wohnung
Wohnungslage
1. Geschoss
Details
Objektbeschreibung
ID CODE: 180
Josip Kadic
Suradnik u procesu obuke
Mob: 098574310
E-mail: j.kadic@homefinder.hr
www.homefinder.hr
Weitere Informationen
Stichworte
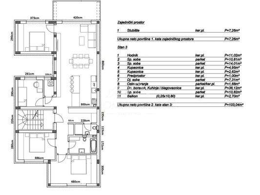
Anzahl der Schlafzimmer: 5, Anzahl der Badezimmer: 2, 1 Etagen
Anbieter der Immobilie
Crozilla.com
Nova cesta 60, 10000 ZAGREB
Online-ID: 2lsqj5m
Referenznummer: 17693528_0
Finde Angebote wie dieses
Hier geht es zu unserem Impressum, den Allgemeinen Geschäftsbedingungen, den Hinweisen zum Datenschutz und nutzungsbasierter Online-Werbung.