

Spittel Bau GmbH
Herr Albert Feix
074 ···
Nr. anzeigenPreise & Kosten
Provision für Käufer
6.34667 % inkl. MwSt.
Lage
Der Luftkurort Tennenbronn liegt mit seinen 3500 Einwohnern auf einer Höhe von 460 - 930 Meter über dem Meeresspiegel. Tennenbronn hat sich die Strukturen eines idyllischen Schwarzwalddorfes erhalten, in welchem sich die Menschen in Vereinen engagieren und eine lebendige Gemeinschaft, Gastfreundschaft, Tradition und Brauchtum...
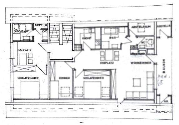
Die Wohnung
Wohnungslage
3. Geschoss (Dachgeschoss)
Bezug
sofort
Wohnanlage
Energie & Heizung
Warum sehe ich diese Anzeige? – Du siehst diese Anzeige basierend auf Ihrer Navigation auf unserer Website und den Suchkriterien, die du verwendet hast.
Energieausweistyp
Bedarfsausweis
Gebäudetyp
Wohngebäude
Gültigkeit
bis 22.11.2035
Effizienzklasse
B
Endenergiebedarf
63,80 kWh/(m²·a)
Weitere Energiedaten
Energieträger
Elektro
Details
Objektbeschreibung
Diese ansprechende 2-Zimmer-Wohnung befindet sich in einem gepflegten Mehrfamilienhaus, das im Jahr 1979 erbaut wurde. Mit einer Wohnfläche von 26 m² eignet sie sich für Singles oder als Pendlerwohnung. Die Wohnanlage ist gepflegt und liegt am Waldrand. Das Haus wurde von der Eigentümerschaft gut gepflegt. So wurden im Jahr...
Ausstattung
-Essplatz
-Schlafzimmer
-Diele
-Badewanne, WC
-Keller
-PKW Stellplatz
Weitere Informationen
Sonstiges
Energieausweis: Bedarfsausweis gültig von: 25.11.2025
Endenergiebedarf Wärme: 63.8 kWh/(m²a)
Wesentliche Energieträger Heizung: Befeuerung Strom
Energieeffizienzklasse: B
Baujahr: 1979
Beim Kauf der nachfolgend angebotenen Immobilie beträgt
der monatliche Aufwand 282,12 EUR
bei einem...
Anbieter der Immobilie

Online-ID: 2lsr95z
Referenznummer: 3010
Finde Angebote wie dieses
Hier geht es zu unserem Impressum, den Allgemeinen Geschäftsbedingungen, den Hinweisen zum Datenschutz und nutzungsbasierter Online-Werbung.