
Columbus Dresden GmbH
Herr André Runge
017 ···
Nr. anzeigenDieses Angebot ist Teil des Neubauprojekts
VERKAUFSBEGINN! JETZT STARTNACHLASS SICHERN! ATTRAKTIV WOHNEN ZUM SMARTEN PREIS!
Preise & Kosten
Provision für Käufer
provisionsfrei
Lage
Naußlitz, ein grüner Stadtteil im Südwesten Dresdens liegt nahe der Innenstadt an den Hanglagen des Elbtals. Hier strömt nicht nur die frische Landluft ein, es bietet sich auch ein sehr angenehmes und beschauliches Lebensumfeld, ideal für die junge Familie. Es ist ein ruhiger Rückzugsort mit der Qualität eines urbanen...
Die Wohnung
Wohnungslage
3. Geschoss (Dachgeschoss)
Bezug
2027
Wohnanlage
Das Neubauprojekt
Energie & Heizung
Warum sehe ich diese Anzeige? – Du siehst diese Anzeige basierend auf Ihrer Navigation auf unserer Website und den Suchkriterien, die du verwendet hast.
Weitere Energiedaten
Heizungsart
Fußbodenheizung
Details
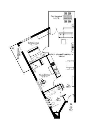
Objektbeschreibung
- Mehrfamilienhaus mit 8 kompakten und sehr familienfreundlichen 3- und 4-Zimmer-Eigentumswohnungen
- Attraktiv und modern gestaltet
- In reizvoller Hanglage Dresdens
- Viel Natur und Freizeitmöglichkeiten in unmittelbarer Nähe.
- Perfektes Familienangebot
- Optimale Infrastruktur mit Nahversorgern und...
Weitere Informationen
Wohnungsdetails
- Gebäudeenergiegesetz „plus“ für beste Energiebilanz;
- Helles Wohn-/Esszimmer mit lichter Verglasung zur großen Südterrasse;
- Küche zum Essbereich integriert;
- Großes Schlafzimmer und großes Kinderzimmer;
- Praktisches Bad mit Tageslicht, Badewanne und offenem Duschraum;
-...
Anbieter der Immobilie

Columbus Dresden GmbH
Schützengasse 13, 01067 Dresden
Online-ID: 2lsrt55
Referenznummer: SH27WE08
Finde Angebote wie dieses
Hier geht es zu unserem Impressum, den Allgemeinen Geschäftsbedingungen, den Hinweisen zum Datenschutz und nutzungsbasierter Online-Werbung.