
Thomas Ellmer Immobilien
Frau Kristina Dreier
091 ···
Nr. anzeigenPreise & Kosten
Kaution
3.750,00
Warum sehe ich diese Anzeige? – Du siehst diese Anzeige basierend auf Ihrer Navigation auf unserer Website und den Suchkriterien, die du verwendet hast.
Lage
Das Anwesen befindet sich in TOP-Lage in NürnbergMögeldorf.
Der Mögeldorfer Plärrer mit Bus und Straßenbahnhaltestellen, sowie S-Bahnhof
sind in nur wenigen Gehminuten zu erreichen.
Einkaufsmöglichkeiten, Arztpraxen, Apotheken etc. sind in unmittelbarer
Umgebung vorhanden.
Der Wöhrder See mit seinen...
Die Wohnung
Wohnungslage
2. Geschoss
Bezug
ab sofort
Derzeitige Nutzung
frei
Wohnanlage
Energie & Heizung
Warum sehe ich diese Anzeige? – Du siehst diese Anzeige basierend auf Ihrer Navigation auf unserer Website und den Suchkriterien, die du verwendet hast.
Energieausweis: für diesen Gebäudetyp nicht notwendig
Weitere Energiedaten
Energieträger
Gas
Heizungsart
Zentralheizung
Details
Objektbeschreibung
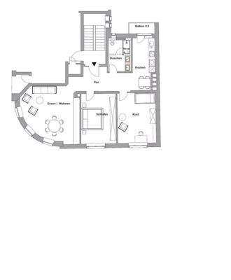
Ihre neue Wohnung befindet sich im 2.OG eines denkmalgeschützten Mehrfamilienhauses. Dieses Schmuckstück wurde 2021 kernsaniert und bietet Ihnen eine offene Küche mit Zugang zum Balkon, ein Bad mit Dusche, WC und Doppelwaschtisch, zwei gleichgroße Zimmer und ein sehr großes Erkerzimmer.
Weitere Informationen
Sonstiges
Die Wohnung wird mit einer Mindestmietdauer von einem Jahr vermietet.
Die Küche kann für 2.500,00 € vom Vormieter abgelöst werden.
Besichtigung-Kontakt
Sie haben Interesse und wünschen eine Besichtigung?
Dann füllen Sie bitte das Kontaktformular aus und senden es uns...
Anbieter der Immobilie
Online-ID: 2lss25p
Referenznummer: Kin2OG2
Finde Angebote wie dieses
Hier geht es zu unserem Impressum, den Allgemeinen Geschäftsbedingungen, den Hinweisen zum Datenschutz und nutzungsbasierter Online-Werbung.