

ANGERMANN REAL ESTATE ADVISORY AG
Herr Valentin Stark
+49 ···
Nr. anzeigenPreise & Kosten
Provision für Mieter
provisionsfrei
Warum sehe ich diese Anzeige? – Du siehst diese Anzeige basierend auf Ihrer Navigation auf unserer Website und den Suchkriterien, die du verwendet hast.
Lage
Das attraktive Bürohaus präsentiert sich im Herzen des etablierten Bürostandorts "City-Süd", im Stadtteil Hammerbrook. Diese Lage hat sich in den letzten Jahren - nicht zuletzt wegen ihrer Nähe zur Innenstadt und der guten Anbindung an den ÖPNV sowie den Individualverkehr - zu dem am stärksten gewachsenen Büroteilmarkt in...
Die Industriefläche
Kategorie
Lagerhalle
Baujahr
1975
Bezug
nach Vereinbarung
Details
Objektbeschreibung
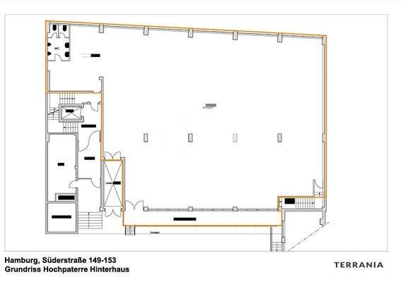
Die Süderstraße 149-153 besteht aus einem Vorder- und einem Hintergebäude, im Osten mit einem kleinen Zwischengebäude verbunden und einem Innenhof, der als Parkplatz genutzt wird. Die zwei Hauptgebäude wurden im Jahr 1959 und 1975 als Stahlbetonskelettbauten mit Stahbeton-Flachdach errichtet. Das Vordergebäude, welches direkt...
Ausstattung
Ausstattungsmerkmale:
ca. 3,2 m UKB
Rampe & Lastenaufzug mit Durchladefunktion
Schwerlastfähiger Boden
beheizt
Weitere Informationen
Sonstiges
Selbstverständlich gern stehen wir Ihnen unterstützend bei Ihrer Hallen- / und Bürosuche zur Verfügung. Für Rückfragen jeglicher Art kommen Sie gern direkt auf uns zu.
Auch wenn das inserierte Objekt vielleicht nicht ganz dem entspricht, was Sie benötigen, melden Sie sich gern. Wir prüfen für Sie, ob sich...
Anbieter der Immobilie
ANGERMANN REAL ESTATE ADVISORY AG
ABC-Straße 35, 20354 Hamburg

Online-ID: 2lsuz5h
Referenznummer: 1320@13@11
Finde Angebote wie dieses
Hier geht es zu unserem Impressum, den Allgemeinen Geschäftsbedingungen, den Hinweisen zum Datenschutz und nutzungsbasierter Online-Werbung.