

Grossmann & Berger GmbH
Herr Torsten Paulsen
+49 ···
Nr. anzeigenPreise & Kosten
Provision für Käufer
3,57 % inkl. MwSt.
Lage
Das Nordseebad List darf den Superlativ, nördlichste Gemeinde Deutschlands, für sich in Anspruch nehmen. Eine einzigartige Dünenlandschaft prägt den immer beliebter werdenden Urlaubsort. Wer Abwechslung mag wird List lieben. Auf der einen Seite der kilometerlange, weiße Weststrand mit der zuweilen rauen See, auf der anderen...
Das Haus
Kategorie
Einfamilienhaus
Baujahr
2011
Energie & Heizung
Warum sehe ich diese Anzeige? – Du siehst diese Anzeige basierend auf Ihrer Navigation auf unserer Website und den Suchkriterien, die du verwendet hast.
Energieausweistyp
Bedarfsausweis
Gebäudetyp
Wohngebäude
Baujahr laut Energieausweis
2009
Wesentliche Energieträger
GAS
Gültigkeit
bis 14.09.2022
Endenergiebedarf
41,10 kWh/(m²·a)
Weitere Energiedaten
Energieträger
Erdwärme
Details
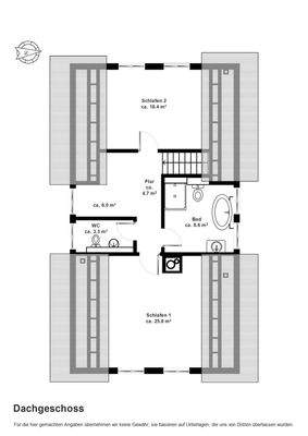
Objektbeschreibung
Auf dem ca. 730 m² großen Grundstück entstand 2009/2010 ein typisches Friesenhaus unter Reet mit einer Wohn- und Nutzfläche* von ca. 217 m², verteilt auf drei Ebenen.
Das hochwertig erbaute und lichtdurchflutete Einzelhaus mit Einliegerwohnung befindet sich im historischen Ortskern von List, unweit des Naturschutzgebietes...
Ausstattung
Das gesamte Haus wurde mit maßgefertigten Tischlereinbauten, Eichendielen und exklusiven Natursteinplatten ausgestattet.
Hauptwohnung:
Der großzügige Wohnbereich mit einem offenen Kamin geht in die geräumige, vollausgestattete Wohnküche über. Zusätzlich wurde im Erdgeschoss ein Gäste-WC eingerichtet. Im Obergeschoss...
Preisinformation
2 Stellplätze
Weitere Informationen
Sonstiges
*Sylter Maß
Die ausgeschriebene Gesamtfläche ist nicht auf eine genormte Berechnung laut WoFIV oder II. BV zurückzuführen. Es handelt sich vielmehr um eine Berechnung nach dem sogenannten "Sylter Maß". Dieses gibt alle im Haus enthaltenen Flächen wieder, gemessen an den Fußleisten (Erd-, Dach u. Untergeschoss)...
Anbieter der Immobilie

Online-ID: 2lsvy5j
Referenznummer: 593648
Finde Angebote wie dieses
Hier geht es zu unserem Impressum, den Allgemeinen Geschäftsbedingungen, den Hinweisen zum Datenschutz und nutzungsbasierter Online-Werbung.