

HBI Wohnungsverwaltung GmbH
Frau Lara Dehmel
041 ···
Nr. anzeigenPreise & Kosten
Kaution
4.200,00 €
Provision für Mieter
2 Kaltmieten zzgl. 19% USt.= 3.332,00 €
Warum sehe ich diese Anzeige? – Du siehst diese Anzeige basierend auf Ihrer Navigation auf unserer Website und den Suchkriterien, die du verwendet hast.
Lage
Diese attraktive Immobilie liegt im Herzen von Steinkirchen und bietet Ihnen eine hervorragende Anbindung an den öffentlichen Nahverkehr mit mehreren Buslinien in unmittelbarer Nähe. In fußläufiger Entfernung finden Sie eine Bäckerei, zwei Restaurants, ein Fitnessstudio, eine Apotheke sowie einen Supermarkt. Zudem sind...
Büro-/Praxisfläche
Kategorie
Bürofläche
Baujahr
Sanierung 2013
Bezug
01.03.2026
Geschoss
Erdgeschoss
Energie & Heizung
Warum sehe ich diese Anzeige? – Du siehst diese Anzeige basierend auf Ihrer Navigation auf unserer Website und den Suchkriterien, die du verwendet hast.
Energieausweistyp
Verbrauchsausweis
Gebäudetyp
Wohngebäude
Wesentliche Energieträger
Gas
Gültigkeit
06.06.2019 bis 05.06.2029
Effizienzklasse
D
Endenergieverbrauch
109,00 kWh/(m²·a) - Warmwasser enthalten
Weitere Energiedaten
Energieträger
Gas
Heizungsart
Zentralheizung
Details
Objektbeschreibung
Objektbeschreibung
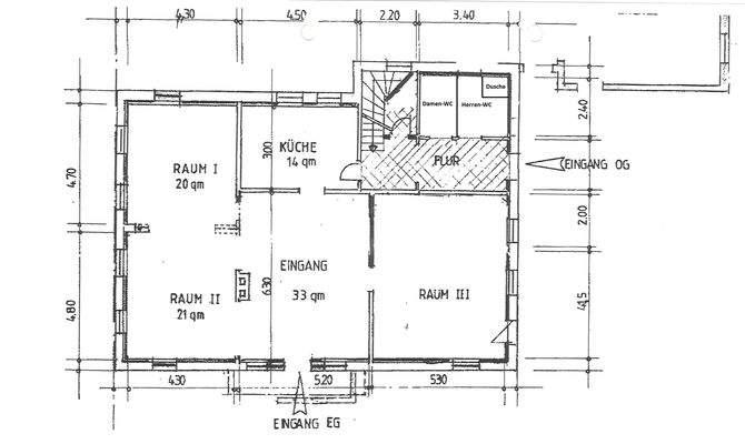
Dieses attraktive Wohn- und Geschäftshaus befindet sich direkt an der Lühe im Herzen von Steinkirchen. Im Erdgeschoss befindet sich die zu vermietende Gewerbeinheit und im Obergeschoss befindet sich eine Wohnung. Die direkt an der Lühe gelegene Terrasse gehört ebenfalls zu der Gewerbeeinheit dazu, genau...
Weitere Informationen
Besichtigungstermine
nach Vereinbarung - Das Büro kann nach Absprache auch bereits vor dem 01.03.2026 gemietet werden.
Stichworte
Sonstiges: Getrennte Damen- und Herren-WCs, frei werdend
Anbieter der Immobilie

Online-ID: 2lswd59
Finde Angebote wie dieses
Hier geht es zu unserem Impressum, den Allgemeinen Geschäftsbedingungen, den Hinweisen zum Datenschutz und nutzungsbasierter Online-Werbung.