
Studio Lago Srl
Firma Tecnocasa Torri del Benaco
003 ···
Nr. anzeigenPreise & Kosten
Mindestpreis, Verkauf gegen Angebot
Provision für Käufer
4% + 22% Ital. MwSt
Die Wohnung
Kategorie
Apartment
Wohnungslage
Erdgeschoss
Bezug
Frei
Derzeitige Nutzung
frei
Wohnanlage
Energie & Heizung
Warum sehe ich diese Anzeige? – Du siehst diese Anzeige basierend auf Ihrer Navigation auf unserer Website und den Suchkriterien, die du verwendet hast.
Weitere Energiedaten
Energieträger
Elektro
Heizungsart
Fußbodenheizung
Details
Weitere Informationen
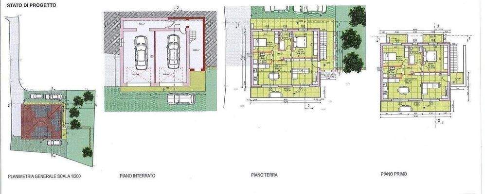
DREIZIMMERWOHNUNG NEUBAU
Neue Doppelhaushälfte nur einen Schritt vom Zentrum und dem See entfernt.
In einer der begehrtesten Gegenden des Dorfes, in ruhiger Lage, umgeben von viel Grün, präsentieren wir die Residenza Le Bionde.
Dieses charmante Anwesen bietet einen schönen Blick auf den See, das Dorf und die alte...
Anbieter der Immobilie
Studio Lago Srl
Marconi, 32, 37011 Bardolino
Online-ID: 2lsxz5q
Finde Angebote wie dieses
Hier geht es zu unserem Impressum, den Allgemeinen Geschäftsbedingungen, den Hinweisen zum Datenschutz und nutzungsbasierter Online-Werbung.