
Scherf Profi Immobilien Service GmbH
Frau Lisa Pelzer
065 ···
Nr. anzeigenPreise & Kosten
Provision für Käufer
provisionsfrei
Lage
Schweich, Stadtmitte in unmittelbarer Nähe des Rathauses. Die Stadt Schweich verfügt über eine sehr gute Infrastruktur mit diversen Einkaufsmöglichkeiten, Lebensmittelversorgung, Ärzte, Apotheken, ein modernes Schulzentrum, Kindergärten, Gastronomie Sport- und Freizeitmöglichkeiten. Alle Einrichtungen des täglichen Bedarfs...
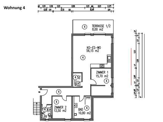
Die Wohnung
Bezug
kurzfristig nach Vereinbarung
Derzeitige Nutzung
frei
Wohnanlage
Energie & Heizung
Warum sehe ich diese Anzeige? – Du siehst diese Anzeige basierend auf Ihrer Navigation auf unserer Website und den Suchkriterien, die du verwendet hast.
Energieausweistyp
Bedarfsausweis
Gebäudetyp
Wohngebäude
Baujahr laut Energieausweis
2022
Wesentliche Energieträger
Luft/Wasser-Wärmepumpe
Gültigkeit
07.08.2023 bis 07.08.2033
Effizienzklasse
A+
Endenergiebedarf
4,20 kWh/(m²·a)
Weitere Energiedaten
Haustyp
KfW 40
Heizungsart
Fußbodenheizung, Luft-/Wasser-Wärmepumpe
Details
Objektbeschreibung
Kurzfristig beziehbar - Modernes altersgerechtes Wohnen mit moderner kostengünstiger Heiztechnik im KFW 40 Energiesparhaus in zentraler ruhiger Stadtlage von Schweich Stadtmitte - KFW Darlehen von 100.000 EUR ab 1,12 % Zins möglich.
Altengerechtes Wohnen mit modernster kostengünstiger Heiztechnik in attraktiver...
Ausstattung
Altengerechtes Wohnen mit modernster kostengünstiger Heiztechnik in attraktiver zentraler Stadtlage von Schweich im ruhigen Innenbereich in der Nähe des Rathauses.
In dieser exponierten Lage sind moderne attraktive Eigentumswohnungen von ca. 61 bis ca. 120 m² mit moderner Technik in altersgerechter Ausführung mit einem...
Preisinformation
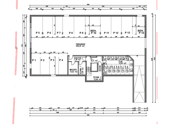
1 Tiefgaragenstellplatz, Kaufpreis: 22.500,00 EUR
Weitere Informationen
Sonstiges
Der Energieausweis liegt vor.
Dieser wird dem Interessenten vor dem Besichtigungstermin mit dem Exposé zur Verfügung gestellt.
Vereinbaren Sie einen Besichtigungstermin und überzeugen Sie sich von der Ausführungsqualität! Sie haben hier den Vorteil, dass Sie einen fertigen Neubau haben und sehen was...
Anbieter der Immobilie
Online-ID: 2lt2f5n
Referenznummer: ETNBSB604D
Finde Angebote wie dieses
Hier geht es zu unserem Impressum, den Allgemeinen Geschäftsbedingungen, den Hinweisen zum Datenschutz und nutzungsbasierter Online-Werbung.