

Allkauf Haus GmbH
Herr Mike Weller
034 ···
Nr. anzeigenPreise & Kosten
Provision für Käufer
provisionsfrei
Lage
Das Haus ist auf einem realen Baugrundstück geplant oder auf einem Grundstück in einer Planungsphase. Das Grundstück erwerben Sie direkt vom Eigentümer.
Bitte haben Sie Verständnis, dass wir ohne ein persönliches Gespräch keine Grundstücksdaten weiterleiten.
Gern sind wir bei der Wahl Ihres Traumgrundstückes...
Das Haus
Kategorie
Einfamilienhaus
Baujahr
2026
Energie & Heizung
Warum sehe ich diese Anzeige? – Du siehst diese Anzeige basierend auf Ihrer Navigation auf unserer Website und den Suchkriterien, die du verwendet hast.
Weitere Energiedaten
Haustyp
KfW 55
Heizungsart
Fußbodenheizung, Luft-/Wasser-Wärmepumpe
Details
Objektbeschreibung
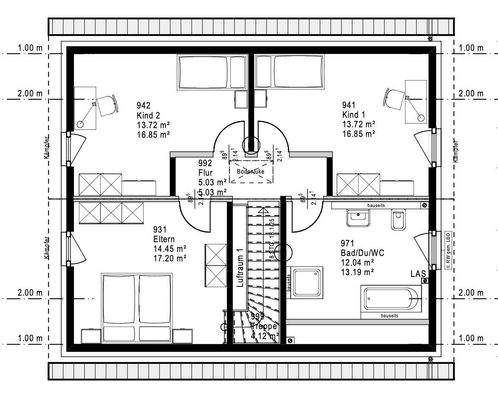
Willkommen in Ihrem neuen Einfamilienhaus in Auerbach/Vogtl., einem Ort, der Ihren Wünschen und Vorstellungen gerecht wird. Dieses projektiertes Traumhaus bietet Ihnen mit 151,22 m² Wohnfläche und 4 Zimmern ausreichend Platz für die gesamte Familie. Hier können Sie kreativ werden und Ihre individuellen Vorstellungen umsetzen...
Ausstattung
Die gehobene Ausstattung unseres Hauses sorgt für höchsten Wohnkomfort. Sie haben die Wahl des Bodenbelags - egal ob Holz, Fliesen oder Teppich, die Auswahl ermöglicht es Ihnen, den perfekten Look für Ihr Zuhause zu finden. Die Verwendung einer Wärmepumpe ist nicht nur umweltfreundlich, sondern sorgt auch für eine effiziente...
Weitere Informationen
Sonstiges
allkauf steht für maximale Sicherheit, kurze Lieferzeiten und garantierte Fertigstellung. Sie profitieren von Festpreisgarantien und einer hohen Qualität, die durch unsere jahrzehntelange Erfahrung im Fertighausbau gesichert ist.
Zu allen Häusern gehört:
- Energieeffizienzwand
- Echtholztreppe
-...
Anbieter der Immobilie
Allkauf Haus GmbH
Gletschersteinstr. 53, 04299 Leipzig

Online-ID: 2lt6p5r
Referenznummer: MW-41-09-PI5
Finde Angebote wie dieses
Hier geht es zu unserem Impressum, den Allgemeinen Geschäftsbedingungen, den Hinweisen zum Datenschutz und nutzungsbasierter Online-Werbung.