
VR IMMOBILIEN GmbH
Herr Maximilian Krause
038 ···
Nr. anzeigenPreise & Kosten
Provision für Käufer
3,57 % inkl. MwSt.
Unser Immobilienbüro hat einen provisionspflichtigen Maklervertrag mit dem Verkäufer in gleicher Höhe abgeschlossen.
Lage
Die Immobilie befindet sich in einer ruhigen und naturnahen Ortsrandlage von Kneese, einer kleinen Gemeinde im Landkreis Nordwestmecklenburg, nahe der Landesgrenze zu Schleswig-Holstein.
Kneese liegt eingebettet zwischen Gadebusch und dem Biosphärenreservat Schaalsee, einer beliebten Erholungsregion mit weitläufiger...
Das Haus
Kategorie
Doppelhaushälfte
Baujahr
1920
Bezug
nach Vereinbarung
Energie & Heizung
Warum sehe ich diese Anzeige? – Du siehst diese Anzeige basierend auf Ihrer Navigation auf unserer Website und den Suchkriterien, die du verwendet hast.
Energieausweistyp
Bedarfsausweis
Gebäudetyp
Wohngebäude
Baujahr laut Energieausweis
1945
Wesentliche Energieträger
Gas
Gültigkeit
16.07.2025 bis 15.07.2035
Effizienzklasse
H
Endenergiebedarf
503,80 kWh/(m²·a)
Weitere Energiedaten
Haustyp
Massivhaus
Energieträger
Gas
Heizungsart
Ofen, Zentralheizung
Details
Objektbeschreibung
Kurzbeschreibung
Mit Engagement und einer durchdachten Sanierung lässt sich hier ein charmantes Zuhause schaffen - inmitten von Natur und dennoch mit guter Verkehrsanbindung.
Objekt
Es handelt sich um eine leerstehende und sanierungsbedürftige Doppelhaushälfte. Die im Jahr ca. 1920 erbaute Immobilie verfügt über...
Ausstattung
Raumaufteilung
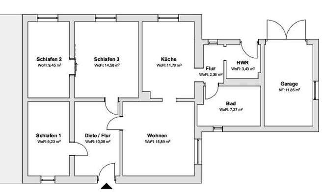
Die Wohnfläche verteilt sich auf insgesamt 4 Zimmer, Diele, Küche, Hauswirtschaftsraum mit Ausgang zur überdachten Terrasse und Garten, ein Badezimmer sowie einen Flur.
Die Raumaufteilung ist funktional, der Innenausbau entspricht jedoch nicht mehr heutigen Standards und muss modernisiert...
Weitere Informationen
Sonstiges
Wir weisen darauf hin, dass unsere Angebotsangaben auf uns erteilter Informationen basieren und deshalb für deren Richtigkeit und Vollständigkeit keine Haftung übernommen wird. Unsere Angaben sind freibleibend und unverbindlich. Irrtum und Zwischenverkauf bleibt ausdrücklich...
Anbieter der Immobilie
VR IMMOBILIEN GmbH
Buchbinderstraße 19, 18055 Rostock
Online-ID: 2lt9h52
Referenznummer: 1659
Finde Angebote wie dieses
Hier geht es zu unserem Impressum, den Allgemeinen Geschäftsbedingungen, den Hinweisen zum Datenschutz und nutzungsbasierter Online-Werbung.