
Eldorado Wohnbau GmbH
B. Ohnmacht
074 ···
Nr. anzeigenPreise & Kosten
zzgl. Nebenkosten
Kaution
3000 €
Warum sehe ich diese Anzeige? – Du siehst diese Anzeige basierend auf Ihrer Navigation auf unserer Website und den Suchkriterien, die du verwendet hast.
Lage
Perfekte Verbindung von Natur und Erreichbarkeit: Diese charmante Mietwohnung in Gäufelden-Öschelbronn bietet nicht nur eine idyllische Umgebung, sondern auch eine ausgezeichnete Anbindung an wichtige Verkehrswege. Die Fahrzeit zur nächsten Autobahn oder S-Bahn nach Stuttgart beträgt ca. 5 Minuten, was sowohl Berufspendler...
Die Wohnung
Wohnungslage
2. Geschoss
Bezug
sofort
Wohnanlage
Energie & Heizung
Warum sehe ich diese Anzeige? – Du siehst diese Anzeige basierend auf Ihrer Navigation auf unserer Website und den Suchkriterien, die du verwendet hast.
Weitere Energiedaten
Heizungsart
Fußbodenheizung, Luft-/Wasser-Wärmepumpe
Details
Objektbeschreibung
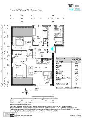
ERSTBEZUG im Neubau!
Bei dieser 4-Zimmer-Wohnung handelt es sich um den Erstbezug in ein wunderschönes Neubau-Mehrfamilienhaus mit Tiefgarage und Aufzug.
+++ KfW Effizienzhaus 55 +++
+++ Es fällt für Sie keine Maklerprovision an +++
Die Wohnung im Dachgeschoss zeichnet sich wie folgt aus...
Ausstattung
- Hochwertige Fußböden in der gesamten Wohnung
- Moderne Badfliesen
- Badkeramik von Villeroy & Boch, Armaturen von Grohe
- Bad mit Dusche und Badewanne
- Elektrische Rollläden, Fußbodenheizung, Videosprechanlage
- KFW 55 Standard
- Fahrstuhl für barrierefreie Erreichbarkeit der Wohnung
- Großer...
Preisinformation
1 Tiefgaragenstellplatz, Miete: 80,00 EUR
Weitere Informationen
Energiepass
Energieausweis wird bei Besichtigung vorgelegt.
Stichworte
Tiefgarage vorhanden, Anzahl der Schlafzimmer: 2, Anzahl der Badezimmer: 1, Anzahl Balkone: 1, Balkon-Terrassen-Fläche: 12,00 m², Bundesland: Baden-Württemberg, 3 Etagen
Dokumente
Anbieter der Immobilie
Eldorado Wohnbau GmbH
Clara-Schumann-Weg 29, 72250 Freudenstadt
Online-ID: 2ltdk5w
Referenznummer: EM-DG-25019
Finde Angebote wie dieses
Hier geht es zu unserem Impressum, den Allgemeinen Geschäftsbedingungen, den Hinweisen zum Datenschutz und nutzungsbasierter Online-Werbung.