

Immobilien Singer
Herr Valentin Singer
016 ···
Nr. anzeigenPreise & Kosten
Provision für Käufer
Für den Käufer ist der Erwerb dieser Immobilie provisionsfrei.
Lage
Haibach liegt im niederbayerischen Landkreis Straubing-Bogen und besticht durch seine naturnahe, ruhige Lage im Vorderen Bayerischen Wald. Die Gemeinde zeichnet sich durch eine hohe Lebensqualität, ländlichen Charme und gleichzeitig eine gute Anbindung an umliegende Städte wie Straubing, Deggendorf und Regensburg...
Die Wohnung
Wohnungslage
Erdgeschoss
Bezug
10.2026
Wohnanlage
Energie & Heizung
Warum sehe ich diese Anzeige? – Du siehst diese Anzeige basierend auf Ihrer Navigation auf unserer Website und den Suchkriterien, die du verwendet hast.
Weitere Energiedaten
Energieträger
Elektro
Heizungsart
Fußbodenheizung, Luft-/Wasser-Wärmepumpe
Details
Objektbeschreibung
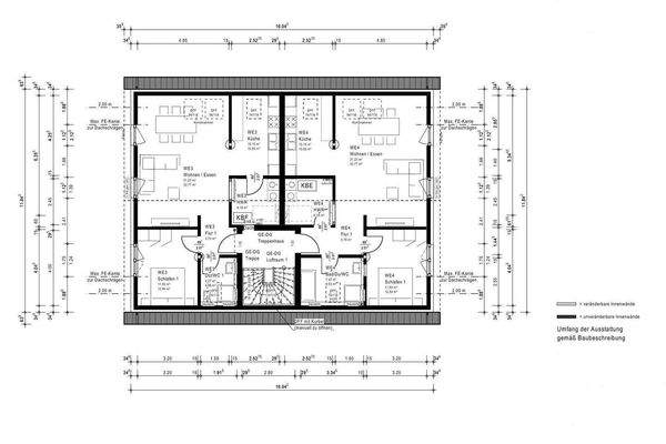
Diese attraktiven 2-Zimmer-Neubauwohnungen befinden sich in einem ruhigen und gepflegten 4-Parteienhaus und bieten modernen Wohnkomfort in angenehmer Lage. Der gut durchdachte Grundriss, helle Räume und hochwertige Ausstattung schaffen ein ideales Zuhause für Singles oder Paare. Außenstellplätze können jeweils für 4.000,00 €...
Ausstattung
- 2-Zimmer-Wohnungen im EG und OG
- insgesamt vier Wohneinheiten im Gebäude
- Ausstattung in der Wohnung noch frei wählbar (Bodenbeläge, Innentüren, etc.)
- Heizung: Voraussichtlich Luft-Wärmepumpe
- Fußbodenheizung in sämtlichen Räumen
- Fenster: Kunststofffenster mit dreifacher Isolierverglasung
-...
Weitere Informationen
Wichtiger Hinweis
Der Energieausweis ist noch in Erstellung und wird in Kürze hochgeladen.
Weitere Infos zu den Wohnungen werden ebenfalls noch in Kürze ergänzt.
Stichworte
Versorgung: Städtische Wasserversorgung, Städtische Stromversorgung
Sonstiges: ISDN
Anbieter der Immobilie

Online-ID: 2ltge5x
Finde Angebote wie dieses
Hier geht es zu unserem Impressum, den Allgemeinen Geschäftsbedingungen, den Hinweisen zum Datenschutz und nutzungsbasierter Online-Werbung.