

Ronald Stopp Immobilien
Herr Ronald Stopp
+49 ···
Nr. anzeigenPreise & Kosten
Provision für Käufer
4.500,00 EUR inkl. gesetzlicher MwSt.
Lage
Zentrale Wohnlage in Chemnitz / Sonnenberg mit guter Verkehrsanbindung ins Stadtzentrum. Alle Einkaufsmöglichkeiten, Schule und Sozialeinrichtungen liegen in direkter Nachbarschaft.
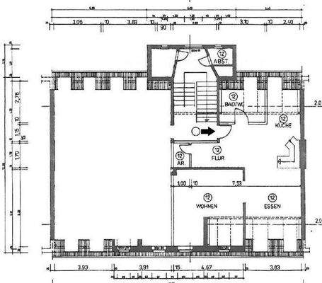
Die Wohnung
Kategorie
Maisonette
Bezug
sofort
Derzeitige Nutzung
frei
Wohnanlage
Energie & Heizung
Warum sehe ich diese Anzeige? – Du siehst diese Anzeige basierend auf Ihrer Navigation auf unserer Website und den Suchkriterien, die du verwendet hast.
Energieausweis: für diesen Gebäudetyp nicht notwendig
Weitere Energiedaten
Energieträger
Gas
Heizungsart
Zentralheizung
Details
Ausstattung
Laminat,
Wannenbad mit Fenster,
Duschbad mit Fenster,
Hausmeister,
neue Einbauküche,
Zentralheizung,
Außenstellplatz
Preisinformation
1 Stellplatz, Kaufpreis: 25,00 EUR
Weitere Informationen
Sonstiges
Alle Daten beziehen sich auf die uns vorliegenden Pläne, uns übergebenen Unterlagen sowie Aussagen des Eigentümers. Für die Richtigkeit dieser Angaben, Irrtümer oder Änderungen können wir keine Haftung übernehmen.
Die hier angegebenen Nebenkosten sind lediglich ein Mindestbedarfsansatz. Je nach politischer...
Anbieter der Immobilie

Online-ID: 2lthp5u
Referenznummer: tschai74.012_VK (1/3211)
Finde Angebote wie dieses
Hier geht es zu unserem Impressum, den Allgemeinen Geschäftsbedingungen, den Hinweisen zum Datenschutz und nutzungsbasierter Online-Werbung.