

Sparkasse Vorpommern, in Vertretung der LBS Immobilien GmbH
Herr Bent Lüdtke
038 ···
Nr. anzeigenPreise & Kosten
Provision für Käufer
3,57 % inkl. MwSt.
Lage
Die Wohnung in der Hanse- und Universitätsstadt Greifswald befindet sich in der Feldstraße. Die ruhige Lage und die Nähe zum Stadtzentrum macht diese Wohngegend begehrt. Die Altstadt mit seinem historischem Stadtkern und die Universität sind fußläufig oder mit dem Fahrrad schnell zu erreichen. Einkaufsmöglichkeiten für Waren...
Die Wohnung
Derzeitige Nutzung
vermietet
Wohnanlage
Energie & Heizung
Warum sehe ich diese Anzeige? – Du siehst diese Anzeige basierend auf Ihrer Navigation auf unserer Website und den Suchkriterien, die du verwendet hast.
Energieausweistyp
Verbrauchsausweis
Gebäudetyp
Wohngebäude
Baujahr laut Energieausweis
1968
Wesentliche Energieträger
Fernwärme
Gültigkeit
23.03.2018 bis 23.03.2028
Effizienzklasse
C
Endenergieverbrauch
81,00 kWh/(m²·a) - Warmwasser enthalten
Weitere Energiedaten
Energieträger
Fernwärme
Heizungsart
Zentralheizung
Details
Objektbeschreibung
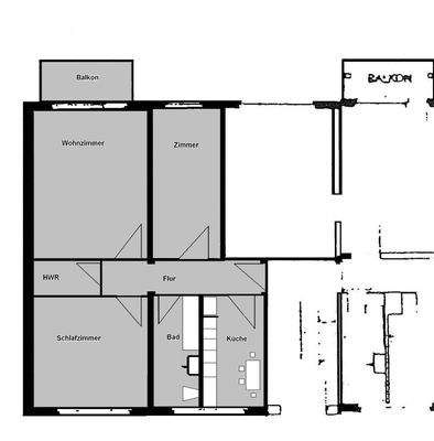
Zum Verkauf steht eine 3-Zimmer-Wohnung im Hochparterre mit ca. 57 m². Die Wohnung hat einen Balkon, welcher zur Südseite ausgerichtet ist. Ebenso sind eine Küche, ein Bad mit Dusche und Tageslichtfenster, Kellerraum sowie ein Stellplatz vorhanden. Das Gebäude wurde 1995 saniert. Die Wohnung wurde 2011 komplett...
Preisinformation
Soll-Mieteinnahmen pro Jahr: 6.141,00 EUR
Ist-Mieteinnahmen pro Jahr: 6.141,00 EUR
Weitere Informationen
Sonstiges
Alle Angaben haben wir vom Auftraggeber erhalten. Für deren Richtigkeit können wir keine Gewähr übernehmen. Einen Zwischenverkauf behält sich der Auftraggeber/Verkäufer ausdrücklich vor.
Stichworte
Stellplatz vorhanden, Anzahl Balkone: 1, Bundesland: Mecklenburg-Vorpommern, 4 Etagen, modernisiert: 1995
Anbieter der Immobilie
Sparkasse Vorpommern, in Vertretung der LBS Immobilien GmbH
An der Sparkasse 1, 17489 Greifswald

Online-ID: 2ltjb5p
Referenznummer: 1784-3451
Finde Angebote wie dieses
Hier geht es zu unserem Impressum, den Allgemeinen Geschäftsbedingungen, den Hinweisen zum Datenschutz und nutzungsbasierter Online-Werbung.