Version: 8.24.0Navigation überspringen
650.000 €
616 m²  •  480 m² Grundstück
Immowelt logo

Sonstiges zum Kauf - Erstbezug • als Kapitalanlage geeignet
650000 €
616 m²  •  480 m² Grundstück

Erstklassiges Investment - Grundstück mit Baugenehmigung

Zum Verkauf steht ein attraktives Baugrundstück in zentraler Lage von Uetersen (Großer Wulfhagen 46 + 48). Das ca. 480 m² große Grundstück ist aktuell unbebaut und verfügt bereits über eine erteilte Baugenehmigung für den Neubau eines Wohn- und Geschäftshauses mit 7 Wohneinheiten und 1 Gewerbeeinheit.
Damit haben Sie als Käufer die Möglichkeit, ohne weitere Verzögerung mit der Umsetzung eines genehmigten Projektes zu starten. Alternativ lässt sich selbstverständlich ein individuelles Konzept entwickeln, sofern dieses den Festsetzungen des Bebauungsplanes entspricht.

Wichtig: Verkauft wird ausschließlich das Grundstück mit der erteilten Baugenehmigung. Die im Bauantrag dargestellten Planungen dienen als Beispiel für die mögliche Bebauung.

Merkmale

  • 480 m² Grundstück
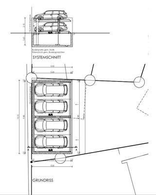
  • 12 Stellplätze: 12 Außen-Stellplätze
Grundstücksgröße: ca. 480 m² (Flurstücke 52 und 234/53, Gemarkung Uetersen)

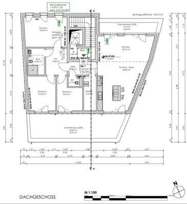
Baugenehmigung liegt vor für ein Wohn- und Geschäftshaus mit:
7 Wohneinheiten
1 Gewerbeeinheit
Stellplatzlösung über PKW-Doppelparker und Fahrradstellplätze

Bebauungsplan Nr. 21.3
(Kerngebiet) - erlaubt geschlossene Bauweise mit 4 Vollgeschossen und Dachgeschoss
Geplante Bruttogrundfläche gesamt: ca. 955 m²

Bitte beachten Sie: Bei der Ausstattung handelt es sich nicht um ein bestehendes Gebäude, sondern um die im Bauantrag genehmigte Bebauung. Das Grundstück bietet Ihnen die Chance, ein modernes Wohn- und Geschäftshaus nach bereits geprüften Plänen zu errichten.

Grundrisse

Grundrisse
1 / 9

Realisiere Dein Projekt

Bausubstanz und Energie

Der Anbieter hat keine Informationen zum Energieverbrauch bereit gestellt.
  • Zustand der ImmobilieErstbezug
Immowelt logo

Preisdetails

Kaufpreis
650000 €
Provision für Käufer
3,57
Weitere Preisinformationen
12 Stellplätze
Geschätzte Gesamtkosten
650.000 €1
Kaufpreis
650.000 €
1Der angezeigte Wert ist eine automatisch berechnete Schätzung von immowelt.

Lage

address-icon
Großer Wulfhagen 46+48Uetersen (25436)
Das Grundstück liegt mitten in der Innenstadt von Uetersen, direkt in der Fußgängerzone Großer Wulfhagen. Hier profitiert man von einer sehr guten Frequenz, kurzen Wegen zu Geschäften, Gastronomie und allen Einrichtungen des täglichen Bedarfs. Für die Vermietbarkeit sowohl der Wohnungen als auch der Gewerbefläche ist die Lage daher besonders attraktiv.

Die Anbindung an den öffentlichen Nahverkehr ist hervorragend. Die Bushaltestelle Großer Wulfhagen befindet sich direkt vor der Tür, weitere Haltepunkte sind ebenfalls schnell zu erreichen. Von hier aus bestehen regelmäßige Verbindungen in Richtung Tornesch, Pinneberg und Hamburg.

Mit dem Auto ist die Auffahrt zur A 23 bei Tornesch in rund 30 Minuten erreichbar. Von dort aus gelangt man schnell nach Pinneberg oder weiter in die Hamburger Innenstadt. Die Fahrt ins Zentrum von Hamburg dauert etwa 35 Minuten. Auch der Flughafen Hamburg ist mit dem Auto in rund 35 Minuten gut zu erreichen.

Durch die Kombination aus Innenstadtlage, sehr guter ÖPNV-Anbindung und schneller Erreichbarkeit von Hamburg und dem Flughafen bietet der Standort ideale Voraussetzungen für stabile Mieteinnahmen und eine nachhaltige Wertentwicklung.

Weitere Informationen

Sonstiges Alle Angaben in diesem Exposé wurden sorgfältig und so vollständig wie möglich gemacht. Sie beruhen auf den Informationen des Eigentümers und dienen einer ersten Information. Eine Gewähr für die Richtigkeit, Vollständigkeit oder Aktualität der Angaben wird nicht übernommen. Maßgeblich sind ausschließlich die im Kaufvertrag geschlossenen Vereinbarungen. Zwischenverkauf und Irrtümer bleiben vorbehalten. Stichworte Wohnfläche: 616,00 m², Anzahl der Wohneinheiten: 7, Anzahl der Gewerbeeinheiten: 1, Bundesland: Schleswig-Holstein

Weitere Services

Lust auf eine Besichtigung?
Eine Frage zur Immobilie?
Nachricht hinzufügen
Mit der Nutzung der oben angegebenen Telefonnummer oder durch Klicken auf „Kontaktieren“ akzeptierst Du die Allgemeinen Nutzungsbedingungen, denen Du jederzeit widersprechen kannst. Weitere Informationen zum Datenschutz

Über den Anbieter

Am Tabakquartier 62, 28197 Bremen
partner badge
Partnerschaft
Herr Emre ÖngelDein Kontakt
Online-ID: 2ltjj5j
Referenznummer: 4182586
Emre Öngel Immobilien GmbH & Co Kg
Nachricht hinzufügen
Mit der Nutzung der oben angegebenen Telefonnummer oder durch Klicken auf „Kontaktieren“ akzeptierst Du die Allgemeinen Nutzungsbedingungen, denen Du jederzeit widersprechen kannst. Weitere Informationen zum Datenschutz
Wie zufrieden bist du mit dieser Seite (nicht mit der Immobilie selbst)?