

Finanzberatung Wolf
Herr Marco Wolf
033 ···
Nr. anzeigenPreise & Kosten
Provision für Käufer
3,57
Lage
Die Immobilie liegt in einer ruhigen Seitenstraße im Herzen von Wusterhausen/Dosse, nur wenige Gehminuten vom historischen Stadtkern entfernt.
Die Straße ist geprägt von gepflegten Einfamilienhäusern und Gärten - eine gewachsene, angenehme Wohngegend mit freundlicher Nachbarschaft.
Besonders attraktiv ist die Nähe...
Das Haus
Kategorie
Einfamilienhaus
Baujahr
1989
Energie & Heizung
Warum sehe ich diese Anzeige? – Du siehst diese Anzeige basierend auf Ihrer Navigation auf unserer Website und den Suchkriterien, die du verwendet hast.
Energieausweistyp
Bedarfsausweis
Gebäudetyp
Wohngebäude
Baujahr laut Energieausweis
1989
Wesentliche Energieträger
OEL
Gültigkeit
bis 21.01.2029
Effizienzklasse
E
Endenergiebedarf
157,80 kWh/(m²·a)
Weitere Energiedaten
Energieträger
Öl
Heizungsart
offener Kamin, Zentralheizung
Details
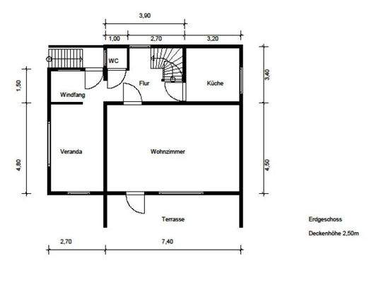
Objektbeschreibung
Dieses charmante Einfamilienhaus in Wusterhausen wurde 1989 in solider Massivbauweise errichtet und überzeugt durch seine gepflegte Erscheinung, einen voll nutzbaren Keller sowie zahlreiche Modernisierungen.
Mit rund 115 m² Wohnfläche auf zwei Ebenen und einer zusätzlichen Nutzfläche von ca. 80 m² im voll...
Ausstattung
Baujahr: 1989, Massivbauweise
Grundstücksgröße: ca. 503 m²
Wohnfläche: ca. 115 m²
Nutzfläche (Keller): ca. 80 m²
Vollunterkellert, Raumhöhe ca. 2,35 m, vielseitig nutzbar (Hobby, Werkstatt, Hauswirtschaft)
Heizung: Öl-Zentralheizung mit Warmwasseraufbereitung
Förderfähig im Rahmen...
Preisinformation
2 Stellplätze
Weitere Informationen
Sonstiges
Hinweis zur Bildbearbeitung:
Einige der in diesem Exposé gezeigten Bilder wurden mithilfe von KI-Technologien bearbeitet oder digital optimiert. Sie dienen der Veranschaulichung des Potenzials der Immobilie und stellen nicht zwingend den aktuellen Zustand dar. Maßgeblich sind allein der tatsächliche...
Anbieter der Immobilie
Finanzberatung Wolf
Virchowstr. 19 A, 16816 Neuruppin

Online-ID: 2ltl95s
Referenznummer: 251086
Finde Angebote wie dieses
Hier geht es zu unserem Impressum, den Allgemeinen Geschäftsbedingungen, den Hinweisen zum Datenschutz und nutzungsbasierter Online-Werbung.