
Rutz Immobilien GmbH
Herr Jan Lippert
004 ···
Nr. anzeigenPreise & Kosten
Provision für Käufer
3,57% inkl. gesetzl. MwSt. (Käuferprovision) (nach §656c BGB n.F) vom beurkundeten Kaufpreis.
Lage
Das Reihenhaus befindet sich in einer ruhigen und begehrten Wohnlage in Delmenhorst-Deichhorst am Ende einer Sackgasse. Diese idyllische Lage bietet nicht nur ein angenehmes Wohnumfeld, sondern auch zahlreiche Spaziermöglichkeiten in unmittelbarer Nähe, ideal für Naturfreunde und Erholungssuchende.
Dennoch...
Das Haus
Kategorie
Reihenmittelhaus
Baujahr
1975
Bezug
sofort
Derzeitige Nutzung
vermietet
Energie & Heizung
Warum sehe ich diese Anzeige? – Du siehst diese Anzeige basierend auf Ihrer Navigation auf unserer Website und den Suchkriterien, die du verwendet hast.
Energieausweistyp
Bedarfsausweis
Gebäudetyp
Wohngebäude
Baujahr laut Energieausweis
1975
Wesentliche Energieträger
GAS
Gültigkeit
bis 27.05.2035
Effizienzklasse
G
Endenergiebedarf
219,00 kWh/(m²·a)
Weitere Energiedaten
Energieträger
Gas
Heizungsart
Etagenheizung
Details
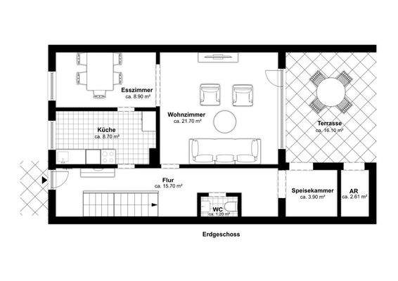
Objektbeschreibung
Das im Jahr 1975 errichtete Reihenmittelhaus überzeugt durch eine durchdachte Raumaufteilung und eine ruhige Wohnlage. Es verfügt über eine Wohnfläche von ca. 115m² und steht auf einem insgesamt 251m² großen Grundstück. Aktuell ist die Immobilie noch bis November 2026 durch einen Zeitmietvertrag vermietet und eignet sich...
Ausstattung
+ Aktuell vermietet bis zum 11/2026 für 954,00€/Monat
+ Vaillant Gas-Heizung mit Warmwasseraufbereitung (2015)
+ 2-fach verglaste Kunststofffenster
+ isolierter Dachboden
+ 3-adrige Elektrik mit Schaltsicherungen
+ Badezimmer mit Badewanne, Dusche und Fenster
+ Gäste-Toilette
+ HWR mit Zugang zur...
Preisinformation
1 Garagenstellplatz
Weitere Informationen
Sonstiges
Wir weisen darauf hin, dass die von uns weitergegebenen Objektinformationen, Unterlagen, Pläne etc. vom Auftraggeber stammen. Eine Haftung für die Richtigkeit oder Vollständigkeit der Angaben übernehmen wir nicht. Es obliegt daher unseren Kunden, die darin enthaltenen Objektinformationen und Angaben auf ihre...
Anbieter der Immobilie
Rutz Immobilien GmbH
Schildstraße 8, 27753 Delmenhorst
Online-ID: 2ltpc5s
Referenznummer: Ref.-Nr. 701
Finde Angebote wie dieses
Hier geht es zu unserem Impressum, den Allgemeinen Geschäftsbedingungen, den Hinweisen zum Datenschutz und nutzungsbasierter Online-Werbung.