
Inseriert auf 123provisionsfrei.de
Bartosz Domagalski
+49 ···
Nr. anzeigenPreise & Kosten
Provision für Käufer
provisionsfrei
Das Haus
Baujahr
1922
Energie & Heizung
Warum sehe ich diese Anzeige? – Du siehst diese Anzeige basierend auf Ihrer Navigation auf unserer Website und den Suchkriterien, die du verwendet hast.
Energieausweistyp
Verbrauchsausweis
Gebäudetyp
Wohngebäude
Baujahr laut Energieausweis
1922
Wesentliche Energieträger
Gas
Gültigkeit
14.08.2025 bis 15.08.2035
Effizienzklasse
C
Endenergieverbrauch
89,00 kWh/(m²·a)
Weitere Energiedaten
Energieträger
Gas
Heizungsart
Zentralheizung
Details
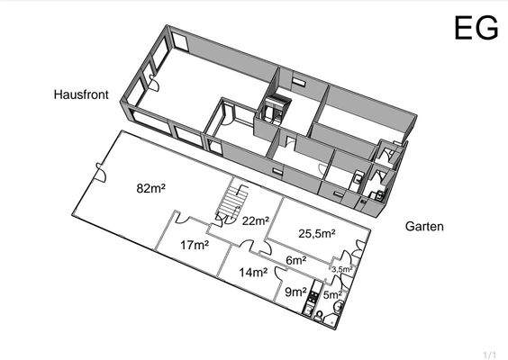
Objektbeschreibung
Zum Verkauf steht ein Geschäftshaus mitten in Heider Innenstadt.
Die Büro- und Wohnflächen belaufen sich auf 404 Quadratmeter. Die Nutzflächen wie Teilkeller, Garage und ein Stelzenhaus geben insgesamt noch 50 Quadratmeter her.
Im Züge einer Kernsanierung sind neue Fenster, Außenrollläden (nicht überall)...
Ausstattung
Das Objekt wird von privat und ohne Makler verkauft.
Preisinformation
2 Stellplätze
1 Garagenstellplatz
Weitere Informationen
Stichworte
Stellplatz vorhanden, Nutzfläche: 50,00 m², Anzahl der Badezimmer: 2, 3 Etagen
Anbieter der Immobilie
Inseriert auf 123provisionsfrei.de
Helmstedter Str. 16, 38448 Wolfsburg
Online-ID: 2ltph5j
Referenznummer: 1vffR6Ujhu-1#RuxkW
Finde Angebote wie dieses
Hier geht es zu unserem Impressum, den Allgemeinen Geschäftsbedingungen, den Hinweisen zum Datenschutz und nutzungsbasierter Online-Werbung.