

S-ImmobilienDienst der Sparkasse Bochum GmbH
Frau Susanne Schrader
Kontaktiere den Anbieter schriftlich, es ist keine Telefonnummer hinterlegt.
Preise & Kosten
Provision für Käufer
3,98 % inkl. der gesetzlichen MwSt. inkl. MwSt.
Lage
Wohnen Sie in einer der attraktivsten und begehrtesten Vororte unserer Stadt. Der Ortsteil Weitmar-Mark verfügt über eine gute Infrastruktur: -Einkaufsmöglichkeiten, Schulen, Kindergärten, Ärzte - alles wird Ihnen hier geboten und ist auch fußläufig in wenigen Minuten gut erreichbar. Auch die Innenstädte von Bochum und...
Das Haus
Kategorie
Doppelhaushälfte
Baujahr
1964
Bezug
Nach Vereinbarung
Energie & Heizung
Warum sehe ich diese Anzeige? – Du siehst diese Anzeige basierend auf Ihrer Navigation auf unserer Website und den Suchkriterien, die du verwendet hast.
Energieausweistyp
Bedarfsausweis
Gebäudetyp
Wohngebäude
Baujahr laut Energieausweis
2000
Wesentliche Energieträger
OEL
Gültigkeit
bis 20.04.2034
Effizienzklasse
H
Endenergiebedarf
304,71 kWh/(m²·a)
Weitere Energiedaten
Haustyp
Massivhaus
Energieträger
Öl
Heizungsart
Zentralheizung
Details
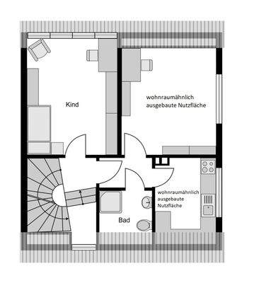
Objektbeschreibung
- Gepflegte Doppelhaushälfte
- Nachgefragte Lage von Weitmar-Mark
- Nähe zum Weitmarer Holz
- Lichtdurchfluteter Wohnbereich
- HARK Kaminofen
- Inkl. geschmackvoller Einbauküche mit
- Elektromarkengeräten
- Terrassen-/Gartengestaltung 2013
- Große Granit-/Natursteinterrasse ca. 36 qm
-...
Preisinformation
2 Stellplätze
Weitere Informationen
Sonstiges
Das zum Verkauf stehende Grundstück wurde neu vermessen. Nach der Eintragung der neuen Grenzen ins Liegenschaftskataster erfolgt die Bereinigung des Grundbuches. Die Differenz zur bisherigen Grundstücksgröße beträgt ca. 163 m². Die im Exposé angegebene Größe entspricht der voraussichtlich neuen Grundstücksgröße...
Anbieter der Immobilie

S-ImmobilienDienst der Sparkasse Bochum GmbH

Frau Susanne Schrader
Dein Ansprechpartner
Kontaktiere den Anbieter schriftlich, es ist keine Telefonnummer hinterlegt.
Online-ID: 2ltq85z
Referenznummer: 18844
Finde Angebote wie dieses
Hier geht es zu unserem Impressum, den Allgemeinen Geschäftsbedingungen, den Hinweisen zum Datenschutz und nutzungsbasierter Online-Werbung.