

Wüstenrot Immobilien
Frau Samira El Founte
017 ···
Nr. anzeigenPreise & Kosten
Provision für Käufer
3,57% inkl. 19% MwSt.
Lage
Die Wohnung befindet sich im attraktiven Stadtteil Seelbach von Herborn, einem der beliebtesten Wohngebiete im mittelhessischen Lahn-Dill-Kreis. Seelbach besticht durch seine ruhige, naturnahe Lage und gleichzeitig gute Anbindung an die Kernstadt Herborn sowie an die umliegenden Orte über die Bundesstraße 255.
Der Ort...
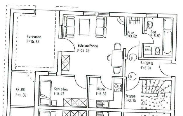
Die Wohnung
Derzeitige Nutzung
vermietet
Wohnanlage
Energie & Heizung
Warum sehe ich diese Anzeige? – Du siehst diese Anzeige basierend auf Ihrer Navigation auf unserer Website und den Suchkriterien, die du verwendet hast.
Energieausweistyp
Verbrauchsausweis
Gebäudetyp
Wohngebäude
Baujahr laut Energieausweis
1998
Wesentliche Energieträger
GAS
Gültigkeit
bis 27.07.2030
Effizienzklasse
D
Endenergieverbrauch
106,70 kWh/(m²·a)
Weitere Energiedaten
Energieträger
Gas
Heizungsart
Zentralheizung
Details
Objektbeschreibung
Kurzbeschreibung
Kapitalanlage in Herborn Seelb
Objekt
Zum Verkauf steht eine gepflegte 2-Zimmer-Eigentumswohnung, welche sich hervorragend als Kapitalanlage eignet. Die Wohnung ist seit dem 01.10.2018 an einen jungen Herrn vermietet, wodurch eine zuverlässige monatliche Kaltmiete in Höhe von 270,20 € sowie ein...
Preisinformation
1 Stellplatz
Weitere Informationen
Sonstiges
Es liegt ein Energieverbrauchsausweis vor.
Dieser ist gültig bis 27.7.2030.
Endenergieverbrauch beträgt 106.70 kwh/(m²*a).
Wesentlicher Energieträger der Heizung ist Gas.
Das Baujahr des Objekts lt. Energieausweis ist 1998.
Die Energieeffizienzklasse ist D.
Stichworte
Stellplatz vorhanden...
Anbieter der Immobilie

Online-ID: 2ltqz5y
Referenznummer: WI 58765
Finde Angebote wie dieses
Hier geht es zu unserem Impressum, den Allgemeinen Geschäftsbedingungen, den Hinweisen zum Datenschutz und nutzungsbasierter Online-Werbung.