
GRUPS Immobilien GmbH
+49 ···
Nr. anzeigenPreise & Kosten
Provision für Käufer
3,57% inkl. MwSt.
Die Provision ist verdient und fällig mit Beurkundung des notariellen Kaufvertrages. Der Makler hat einen provisionspflichtigen Maklervertrag mit dem Verkäufer in gleicher Höhe abgeschlossen.
Lage
Das Grundstück befindet sich in sehr ruhiger Lage von Bad Muskau im Ortsteil Köbeln. Die grüne und exklusive Lage garantieren einen sehr hohen Erholungswert. Im direkten Umfeld befinden sich Einfamilienhäuser und Grünflächen.
Die Mittelschule und die Stadtverwaltung von Bad Muskau sind mit dem Auto in nur ca. 6 Minuten...
Das Haus
Kategorie
Einfamilienhaus
Baujahr
1997
Bezug
sofort
Energie & Heizung
Warum sehe ich diese Anzeige? – Du siehst diese Anzeige basierend auf Ihrer Navigation auf unserer Website und den Suchkriterien, die du verwendet hast.
Energieausweistyp
Verbrauchsausweis
Gebäudetyp
Wohngebäude
Baujahr laut Energieausweis
1997
Wesentliche Energieträger
Flüssiggas
Gültigkeit
29.06.2025 bis 29.06.2035
Effizienzklasse
B
Endenergieverbrauch
59,62 kWh/(m²·a) - Warmwasser enthalten
Weitere Energiedaten
Energieträger
Gas
Heizungsart
Zentralheizung
Details
Objektbeschreibung
Kurzbeschreibung
Modernes Efh mit gehobener Ausstattung zu verkaufen
Objekt
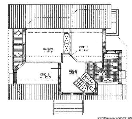
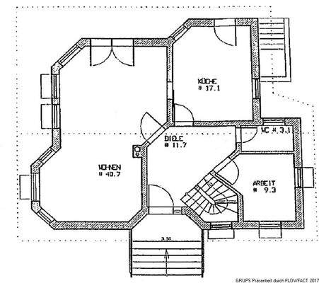
Zum Verkauf steht ein großes, voll unterkellertes Einfamilienhaus in Massivbauweise, Baujahr 1997.
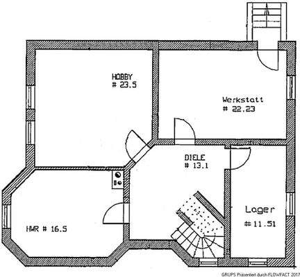
Keller:
-Diele ca. 13 qm
-Heizungsraum / Technik 16,50 qm
-Hobbyraum 23,5 qm
-Lager 11,50 qm
-Werkstatt 22,20...
Ausstattung
Das Gebäude verfügt über eine neue Gasheizung (Baujahr 2021), Kunststofffenster (außen grün innen weiß), Natursteinfensterbänke, elektrische Außenjalousien an allen Fenstern, moderne Bodenbeläge, einen Holzofen/Kamin, zwei Balkone, eine große Terrasse, eine Garage, einen großen Holzlagerraum. Das Grundstück hat im...
Preisinformation
1 Garagenstellplatz
Weitere Informationen
Sonstiges
Energiekennwert: 59,62 kWh/(m²*a)
Energieeffizienzklasse: B
Baujahr: 1997
Heizungsart: Gas-Heizung
Befeuerung/Energieträger: Flüssiggas
Energieausweistyp: Verbrauchsausweis
Energie mit Warmwasser: Ja
Gern stellen wir Ihnen den Energieausweis -sofern vorhanden- auf Anfrage zur...
Anbieter der Immobilie
Online-ID: 2ltsm5q
Referenznummer: 11823
Finde Angebote wie dieses
Hier geht es zu unserem Impressum, den Allgemeinen Geschäftsbedingungen, den Hinweisen zum Datenschutz und nutzungsbasierter Online-Werbung.