

REUTER IMMOBILIEN
Herr Dustin Reuter
040 ···
Nr. anzeigenPreise & Kosten
Provision für Mieter
provisionsfrei
Warum sehe ich diese Anzeige? – Du siehst diese Anzeige basierend auf Ihrer Navigation auf unserer Website und den Suchkriterien, die du verwendet hast.
Lage
Das angebotene Mietobjekt liegt in Niendorf, einem der grünen und familienfreundlichen Stadtteile Hamburgs, der durch seine hervorragende Infrastruktur, die naturnahe Umgebung und seine gute Anbindung besticht.
Niendorf bietet eine ausgezeichnete Verkehrsanbindung. Die U-Bahn-Stationen (U2) "Niendorf Markt" und...
Büro-/Praxisfläche
Kategorie
Bürofläche
Bezug
nach Absprache
Geschoss
Erdgeschoss
Details
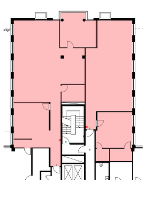
Objektbeschreibung
Modernes Büro im Erdgeschoss eines Büro- & Geschäftshauses im Hamburger Norden zu vermieten!
Das Bürogebäude besticht nicht nur durch seine architektonische Gestaltung und auffällige Sichtbarkeit von der Straße aus, sondern auch durch das beeindruckende Foyer mit moderner Ausstattung und zwei Personenaufzügen, die...
Ausstattung
- Bodenbelag Teppich
- Trennwände flexibel
- abgehängte Decken mit Raster-Einbauleuchten
- Kabelführung Hohlraumboden für EDV-Verkabelung
- Kfz-Stellplätze Tiefgarage (jeweils 60,00 € zzgl. MwSt./pro Monat)
- die Raumaufteilung kann individuell an Ihre Bedürfnisse angepasst werden
Weitere Informationen
Sonstiges
Alle Angaben sind ohne Gewähr und basieren ausschließlich auf Informationen Dritter. Wir schließen jegliche Gewähr und Haftung für die Vollständigkeit, Richtigkeit und Aktualität dieser Angaben aus. Irrtum und Zwischenverkauf bleiben vorbehalten.
Sollte das von uns nachgewiesene Objekt bereits bekannt...
Anbieter der Immobilie

Online-ID: 2ltxn5h
Referenznummer: Objekt-ID1178
Finde Angebote wie dieses
Hier geht es zu unserem Impressum, den Allgemeinen Geschäftsbedingungen, den Hinweisen zum Datenschutz und nutzungsbasierter Online-Werbung.