eXp Realty Germany GmbH

Herr Gert Schwarz

"Klein aber fein" - Charmantes Häuschen mit 3 Zimmern und großer Dachterrasse im Herzen der Fachwerk-Alstadt von Dreieichenhain

€ 399.000
Kaufpreis
98,34 m²
Wohnfläche ca.
3
Zimmer
100 m²
Grundstücksfl. ca.

Der Anbieter dieses Objekts hat gegenüber der AVIV Germany GmbH als Betreiber dieses Online-Marktplatzes erklärt, nicht als Unternehmer im Sinne des § 1 KSchG zu handeln. Die im Verbraucherschutzrecht der Union verankerten Verbraucherrechte (insbesondere Informationspflichten und Rücktritts- bzw. Widerrufsrechte) finden auf den Vertrag zwischen dem Anbieter des Objekts und Ihnen (dem Interessenten) keine Anwendung.

Gewerblicher Anbieter

Der Anbieter dieses Objekts hat gegenüber der AVIV Germany GmbH als Betreiber dieses Online-Marktplatzes erklärt, als Unternehmer im Sinne des § 1 KSchG zu handeln.

AdresseStraße nicht freigegeben
63303 Dreieich 
(Dreieichenhain)
Auf Karte ansehen

Preise & Kosten

Kaufpreis € 399.000

Provision für Käufer

3,57 % inklusive 19 % MWSt. inkl. MwSt.

Abschreibung/Anlage

Denkmalschutz-Afa

Lage

Das traumhafte Häuschen liegt mitten in der ruhigen historischen Fachwerk-Altstadt von Dreieichenhain, die mit ihren Bauwerken aus der Periode des 15. Jahrhunderts bis 19. Jahrhunderts ihresgleichen sucht.
Bei der Adresse handelt sich um eine kleine Nebenstraße, ohne jeglichen Autoverkehr, in unmittelbarer Nähe zur...

Mehr anzeigen

Das Haus

Kategorie

Einfamilienhaus

Baujahr

1997

Bezug

sofort

Derzeitige Nutzung

vermietet

  • Zustand: renoviert / saniert
  • nicht unterkellert
  • Terrasse
  • Anschlüsse: Kabelanschluss

Energie & Heizung

info

Energieausweis: für diesen Gebäudetyp nicht notwendig

Weitere Energiedaten

Energieträger

Gas

Heizungsart

Zentralheizung

Details

Objektbeschreibung

Das zum Verkauf stehende Anwesen vereint charmante Fachwerk-Architektur mit modernem Wohnkomfort und bietet eine einzigartige Gelegenheit zum Kauf. Erbaut im Jahr 1997 und vollständig renoviert, präsentiert sich das Haus in einem exzellenten Zustand.

Auf ca. 98 m² Wohnfläche und zwei Etagen bietet die Liegenschaft...

Mehr anzeigen

Ausstattung

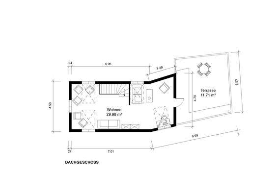
Die Liegenschaft verfügt über eine fast 27 m² goße Dachterrasse und eine neue Gaß-Zentralheizung aus dem Jahr 2012.
Zudem wurde das Erdgeschoss komplett neu gefliest.

Es besteht Ensembleschutz für die Immobilie.
Dies bedeutet, dass in diesem Fall sich nur das äußere Erscheinung in das Ortsbild einfügen muss. Für...

Mehr anzeigen

Weitere Informationen

Sonstiges
Sämtliche Angaben basieren auf Informationen der Eigentümer. Wir prüfen diese selbstverständlich gründlich können aber keine Haftung oder Gewährleistung für die Angaben Dritter übernehmen.

Sollte ein notarieller Kaufvertrag aufgrund unserer Tätigkeit zustande kommen, so gilt unsere Provision als verdient...

Mehr anzeigen

Anbieter der Immobilie

Partner

eXp Realty Germany GmbH

im Durchschnitt  5,00  Sterne
(bei 4 Bewertungen)

Dreieichplatz 7, 63303 Dreieich

user

Herr Gert Schwarz

Dein Ansprechpartner

Anbieter-Website Anbieter-Profil Anbieter-Impressum

Online-ID: 2ltzh59

Referenznummer: 2025-08-715

Finde Angebote wie dieses

imageimageimage

Hier geht es zu unserem Impressum, den Allgemeinen Geschäftsbedingungen, den Hinweisen zum Datenschutz und nutzungsbasierter Online-Werbung.