

GI Grafschafter Immobilienmanagement GmbH
Herr Mirko Pfau
017 ···
Nr. anzeigenPreise & Kosten
Kaution
14.400,00
Provision für Mieter
1,5 Monatsmieten zzgl. MwSt.
Warum sehe ich diese Anzeige? – Du siehst diese Anzeige basierend auf Ihrer Navigation auf unserer Website und den Suchkriterien, die du verwendet hast.
Lage
Die Lagerhalle befindet sich im grenznahen Gewerbepark Bad Bentheim Gildehaus an der A 30 am Autobahngrenzübergang zu den Niederlanden.
Die Autobahnauffahrt Gildehaus und somit auch die Hauptverkehrsachse Amsterdam - Berlin ist sehr gut zu erreichen. Das ca. 10 km entfernt liegende Autobahnkreuz mit der A 31 erschließt...
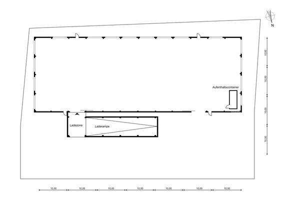
Die Industriefläche
Kategorie
Lagerhalle
Baujahr
2000
Bezug
nach Absprache
Details
Objektbeschreibung
Willkommen in Ihrer zukünftigen Gewerbeimmobilie im Gewerbegebiet Gildehaus, unweit der Grenze zu den Niederlanden und zur A 30.
Diese großzügige Lagerhalle zur Miete bietet eine ideale Lösung für Unternehmen, die Wert auf Raum und Funktionalität legen. Errichtet im Jahr 2000, passt sich die Immobilie flexibel Ihren...
Ausstattung
- Außenwände: isolierte Thermo-Bleche 60 mm stark
- Dach: Thermo-Dachplatten
- Regalsystem
- überdachte Rampenvertiefung als Haveriebecken
- Schienen für Kranbahn (bis zu 10 t) vorhanden
- Glasfaserkabel befindet sich an der Luxemburger Straße
- WHG - Abdichtungskonstruktion nach dem SAFETYCRETE-System
-...
Preisinformation
Nettokaltmiete: 7.200,00 EUR
Weitere Informationen
Sonstiges
Halle: 1.785 qm
Rampe: 163 qm
Stichworte
Lagerfläche: 1.785,00 m², Gesamtfläche: 1.948,00 m², Distanz zur Autobahn: 1.00
Anbieter der Immobilie
GI Grafschafter Immobilienmanagement GmbH
NINO-Allee 11, 48529 Nordhorn

Online-ID: 2ltzj5t
Referenznummer: GI-361
Finde Angebote wie dieses
Hier geht es zu unserem Impressum, den Allgemeinen Geschäftsbedingungen, den Hinweisen zum Datenschutz und nutzungsbasierter Online-Werbung.