
Rehder Wohnungsbau GmbH
Frau Bianca Hinzmann
041 ···
Nr. anzeigenPreise & Kosten
Provision für Käufer
provisionsfrei
Lage
Wohnen, wo die Elbe am schönsten ist! Genießen Sie täglich maritimes Flair in exponierter Lage Wedels, inmitten der Maritimen Meile, welche Wedels Stadtbild in den nächsten Jahren immer mehr prägen wird.
In der attraktiven Kleinstadt Wedel läßt es sich außerordentlich gut Leben und Wohnen. Geschäfte für die täglichen...
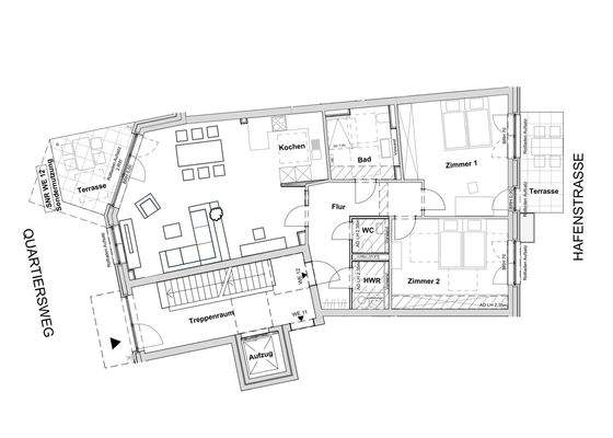
Die Wohnung
Wohnungslage
Erdgeschoss
Bezug
2026
Wohnanlage
Energie & Heizung
Warum sehe ich diese Anzeige? – Du siehst diese Anzeige basierend auf Ihrer Navigation auf unserer Website und den Suchkriterien, die du verwendet hast.
Energieausweistyp
Bedarfsausweis
Gebäudetyp
Wohngebäude
Baujahr laut Energieausweis
2024
Wesentliche Energieträger
Fernwärme Stadtwerke Wedel
Gültigkeit
15.04.2024 bis 14.04.2034
Effizienzklasse
A+
Endenergiebedarf
29,60 kWh/(m²·a)
Weitere Energiedaten
Energieträger
Blockheizkraftwerk, Fernwärme, Gas
Haustyp
KfW 55
Heizungsart
Fußbodenheizung
Details
Objektbeschreibung
“Wohnen, wo die Elbe am schönsten ist“ – treffender könnte man unser Projekt nicht beschreiben. Die Lage nur wenige Meter entfernt vom Schulauer Hafen und dem dahinter liegenden Elbstrand ist einzigartig: Weitblick auf die Elbinseln Hanskalbsand und Neßsand. Lässt man den Blick weiter in Richtung Westen schweifen, wo über der...
Ausstattung
• Aufzug über alle Geschosse
• Tiefgarage für PKW
• TG-Stellplatz mit Vorrüstung für Elektromobilität
• viele Fahrradabstellplätze im Bereich der Tiefgarage/Keller
• großer Kellerraum (fast 11 m²)
• zwei große Terrassen mit Elbblick
• Parkettboden in Dielenoptik, Oberfläche Eiche geölt, Kaschmir grau
•...
Weitere Informationen
Über uns
Seit über 60 Jahren steht die Firma Rehder als zuverlässiger Partner für hohe und nachhaltige Bauqualität.
Mit unserem bauausführenden Unternehmen Helmut Rehder + Sohn GmbH, leisten wir mit eigenen gewerblichen Mitarbeitern alle Arbeiten des Bauhauptgewerbes.
Die Ausbauarbeiten werden von Firmen aus der...
Anbieter der Immobilie
Online-ID: 2lu2z5p
Referenznummer: SHT, WE 12, Hs. 3
Finde Angebote wie dieses
Hier geht es zu unserem Impressum, den Allgemeinen Geschäftsbedingungen, den Hinweisen zum Datenschutz und nutzungsbasierter Online-Werbung.