

Dous Immobilien GmbH
Frau Andrea Dudszus
004 ···
Nr. anzeigenPreise & Kosten
Provision für Käufer
3,57 % inkl. MwSt.
Lage
Lüneburg mit seinen beinahe 80 000 Einwohnern überzeugt vor allem durch eine sehr hohe Lebensqualität und sein wunderschönes historisches Stadtbild. Deshalb haben in den vergangenen Jahren auch immer mehr Pendler die "kleine" Hansestadt als Wohnort für sich entdeckt. Zudem ist die große Hanse-Schwester Hamburg mit...
Das Haus
Kategorie
Einfamilienhaus
Baujahr
1954
Energie & Heizung
Warum sehe ich diese Anzeige? – Du siehst diese Anzeige basierend auf Ihrer Navigation auf unserer Website und den Suchkriterien, die du verwendet hast.
Energieausweistyp
Bedarfsausweis
Gebäudetyp
Wohngebäude
Baujahr laut Energieausweis
2010
Wesentliche Energieträger
GAS
Gültigkeit
bis 11.08.2035
Effizienzklasse
G
Endenergiebedarf
240,80 kWh/(m²·a)
Weitere Energiedaten
Haustyp
Massivhaus
Heizungsart
offener Kamin
Details
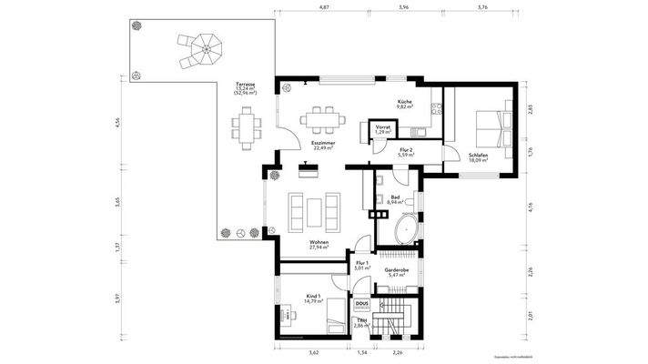
Objektbeschreibung
In einer der begehrtesten Wohnlagen Lüneburgs, im grünen Stadtteil Wilschenbruch, befindet sich dieses großzügige Ein- bis Zweifamilienhaus aus dem Jahr 1954. Auf einem 1.107 m² großen Grundstück bietet es viel Platz für individuelle Wohnideen und verbindet modernen Wohnkomfort mit einer hervorragenden Lage. Aktuell wird das...
Preisinformation
1 Garagenstellplatz
Anbieter der Immobilie

Online-ID: 2lu7w5g
Referenznummer: W-K-LG-25-042-P
Finde Angebote wie dieses
Hier geht es zu unserem Impressum, den Allgemeinen Geschäftsbedingungen, den Hinweisen zum Datenschutz und nutzungsbasierter Online-Werbung.