
Breitwieser Roth GmbH
089 ···
Nr. anzeigenPreise & Kosten
Provision für Mieter
provisionsfrei
Warum sehe ich diese Anzeige? – Du siehst diese Anzeige basierend auf Ihrer Navigation auf unserer Website und den Suchkriterien, die du verwendet hast.
Lage
- zwischen Isartor, Viktualienmarkt und Marienplatz
- U- und S-Bahn Marienplatz
- nur wenige Gehminuten bis zur Fußgängerzone, sehr gute Infrastruktur mit allen Geschäften für den täglichen Bedarf
- vielfältige Auswahl an Restaurants und Cafés direkt vor der Tür
Büro-/Praxisfläche
Kategorie
Bürofläche
Baujahr
1988
Bezug
nach Vereinbarung
Energie & Heizung
Warum sehe ich diese Anzeige? – Du siehst diese Anzeige basierend auf Ihrer Navigation auf unserer Website und den Suchkriterien, die du verwendet hast.
Wärme
Strom
Energieausweistyp
Verbrauchsausweis
Gebäudetyp
Nicht-Wohngebäude
Endenergieverbrauch (Wärme)
47,00 kWh/(m²·a)
Endenergieverbrauch (Strom)
69,00 kWh/(m²·a)
Weitere Energiedaten
Energieträger
Fernwärme
Heizungsart
Zentralheizung
Details
Objektbeschreibung
Kurzbeschreibung
Kurzfristig beziehbar ... Effizientes Büro direkt am Isartor
Objekt
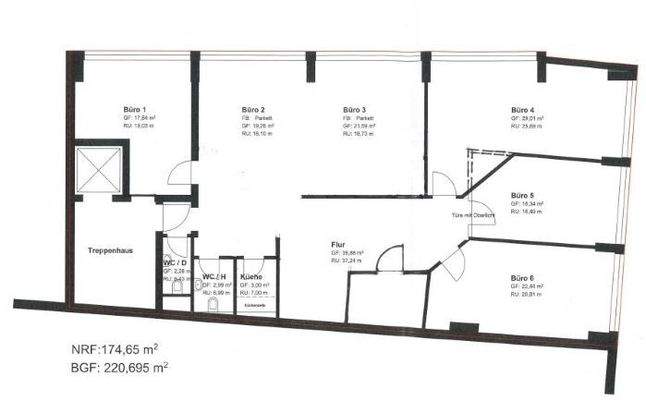
Mitten im Geschehen und in schöner Altstadtlage befindet sich die Büroeinheit mit Blick auf das Isartor. Die großzügige Fensterfront und die gut geschnittenen Büroräume ermöglichen ein angenehmes Arbeiten. Eine gute Gelegenheit...
Ausstattung
- Parkettboden
- Beleuchtung mieterseits bzw. nach Absprache mit dem jetzigen Mieter
- Kabelkanäle für IT-Verkabelung, jetzige EDV-Verkabelung könnte vom Vormieter übernommen werden
- Personenlift
- Raumhöhe von ca. 2,60 m
Weitere Informationen
Sonstiges
- PKW-Stellplätze sind in den umliegenden öffenltlichen Parkgaragen anzufragen
- 2 öffentliche E-Ladestationen (22 kW Typ 2) befinden sich direkt gegenüber
- Archivflächen auf Anfrage
- Gewerbesteuerhebesatz von 490 %
- bei Übernahme zum 1. Dezember 2025 ist eine Monatsmiete Maklerprovision zu zahlen...
Anbieter der Immobilie
Online-ID: 2luaa5n
Referenznummer: 11732
Finde Angebote wie dieses
Hier geht es zu unserem Impressum, den Allgemeinen Geschäftsbedingungen, den Hinweisen zum Datenschutz und nutzungsbasierter Online-Werbung.