

Ulrike Faber Immobilien
Frau Ulrike Faber
017 ···
Nr. anzeigenPreise & Kosten
Provision für Käufer
3,57 inkl. MwSt.
Die Notar- und die Grundbuchkosten sowie die Grunderwerbssteuer sind vom Käufer zu tragen. Weitere Informationen siehe Provisionshinweis.
Lage
Das Reihenmittelhaus befindet sich in einem sehr beliebten und ruhigen Stadtteil von Sarstedt, welcher für seine familienfreundliche Atmosphäre und die gute Infrastruktur bekannt ist. In unmittelbarer Nähe finden sich Schulen, Kindergärten, Einkaufsmöglichkeiten und Freizeitangebote. Die Umgebung zeichnet sich durch viel...
Das Haus
Kategorie
Reihenmittelhaus
Baujahr
2002
Energie & Heizung
Warum sehe ich diese Anzeige? – Du siehst diese Anzeige basierend auf Ihrer Navigation auf unserer Website und den Suchkriterien, die du verwendet hast.
Weitere Energiedaten
Energieträger
Gas
Details
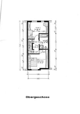
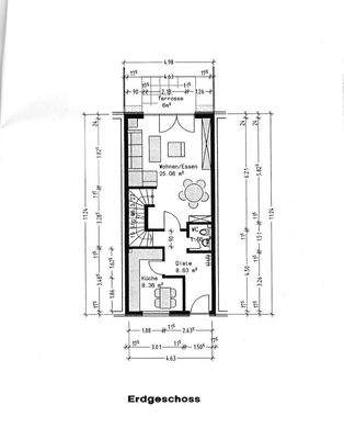
Objektbeschreibung
Dieses charmante Reihenmittelhaus aus dem Jahr 2005 erstreckt sich über zwei Etagen und bietet eine Wohnfläche von 113m². Mit insgesamt 5 Zimmern, darunter 3 Schlafzimmern und einem Badezimmer, Gäste WC und Küche sowie 2,5 Kellerräumen bietet es ausreichend Platz für eine Familie. Die Immobilie verfügt zudem über eine...
Ausstattung
Die Immobilie verfügt über eine Einbauküche, die bereits integriert ist. Zudem gibt es eine Gästetoilette, die den Komfort für Gäste oder zusätzliche Bewohner erhöht. Die allgemeine Qualität der Ausstattung kann als normal eingestuft werden, wobei funktionale und solide Materialien verwendet wurden. Insgesamt bietet die...
Weitere Informationen
Provisionshinweis
3,57 inkl. MwSt.
Die Notar- und die Grundbuchkosten sowie die Grunderwerbssteuer sind vom Käufer zu tragen. Die Makler-Courtage in Höhe von 6,00 % des Kaufpreises exklusive der gesetzlichen Mehrwertsteuer verteilt sich zu je 3,57 % inkl. MWST auf den Käufer und Verkäufer. Sie ist verdient und fällig...
Anbieter der Immobilie
Ulrike Faber Immobilien
In der Harst 5, 31275 Lehrte

Online-ID: 2luav5f
Referenznummer: 18#Pv83q
Finde Angebote wie dieses
Hier geht es zu unserem Impressum, den Allgemeinen Geschäftsbedingungen, den Hinweisen zum Datenschutz und nutzungsbasierter Online-Werbung.