
Finest Properties International - Berlin Pankow
Frau Marie Banach
+49 ···
Nr. anzeigenPreise & Kosten
Provision für Käufer
7,14% inkl. USt.
Lage
Im charmanten Dorfkern von Glienicke/Nordbahn, direkt vor den Toren Berlins, befindet sich dieses attraktive Wohn- und Geschäftshaus in einer besonders gefragten Lage.
Die Umgebung besticht durch ihren dörflich-historischen Charakter: gepflegte Gärten, stilvolle Stadtvillen und Gründerzeithäuser prägen das Bild...
Gastronomie/Hotel
Baujahr
1910
Details
Objektbeschreibung
Dieses besondere Wohn- und Geschäftshaus auf einem ca. 696 m² großen Eckgrundstück im historischen Zentrum von Glienicke/Nordbahn vereint stilvolles Wohnen mit attraktiven gewerblichen Nutzungsmöglichkeiten.
Die unter Denkmalschutz stehende Immobilie beeindruckt durch ihren charaktervollen Altbaucharme und eine Vielzahl...
Ausstattung
Eckdaten der Liegenschaft:
- Umnutzung (von Gewerbe zu nur Wohnen) möglich
- Grundstücksfläche von ca. 696 m²
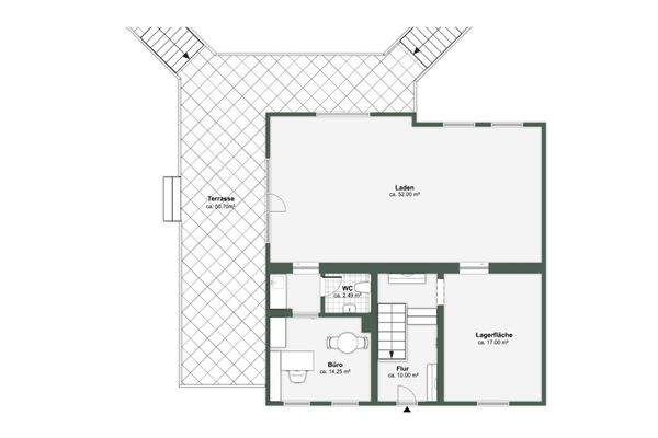
- Wohnfläche von ca. 95 m²
- Gewerbefläche von ca. 85 m²
- Außenstellplätze für ca. 2-3 Autos
- großzügige Räumlichkeiten mit historischen Details
- bestehender Denkmalschutz
- der...
Preisinformation
2 Stellplätze
Weitere Informationen
Stichworte
Stellplatz vorhanden, Wohnfläche: 227,00 m², Nutzfläche: 227,00 m², Gesamtfläche: 227,00 m², Anzahl der Schlafzimmer: 1, Anzahl der Badezimmer: 1, Anzahl Balkone: 1, Anzahl Terrassen: 1, Bundesland: Brandenburg, 2 Etagen
Anbieter der Immobilie
Finest Properties International - Berlin Pankow
Wollankstraße 135, 13187 Berlin
Online-ID: 2luc957
Referenznummer: Kensington_KBP_602
Finde Angebote wie dieses
Hier geht es zu unserem Impressum, den Allgemeinen Geschäftsbedingungen, den Hinweisen zum Datenschutz und nutzungsbasierter Online-Werbung.