
EHL Immobilien GmbH
Frau Ingrid Neugebauer
+43 ···
Nr. anzeigenPreise & Kosten
Provision für Käufer
Provision bezahlt der Abgeber.
Das Haus
Kategorie
Reihenmittelhaus
Baujahr
2025
Bezug
sofort
Energie & Heizung
Warum sehe ich diese Anzeige? – Du siehst diese Anzeige basierend auf Ihrer Navigation auf unserer Website und den Suchkriterien, die du verwendet hast.
Heizwärmebedarf (HWB)
29,60 kWh/(m²·a)
Gesamtenergieeffizienz (fGEE)
0,66
Weitere Energiedaten
Energieträger
Fernwärme
Heizungsart
Fußbodenheizung
Details
Objektbeschreibung
ERSTBEZUG! Neu fertiggestellte Reihenhäuser in moderner Holzbauweise, die nicht nur nachhaltig, sondern auch unglaublich wohnlich sind. Perfekt für alle, die von einem Zuhause mit klarem Konzept, viel Licht und einer grünen Umgebung träumen. Direkt beim Wiener Neustädter Kanal - liebevoll das "Canale Grande von...
Weitere Informationen
Stichworte
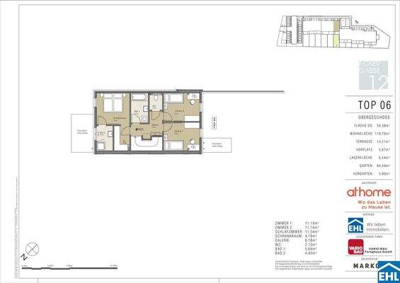
Süd-West-Balkon/Terrasse, Fahrradraum, Rolladen, Anzahl der Badezimmer: 2, Anzahl der separaten WCs: 2, Anzahl Terrassen: 1, Balkon-Terrassen-Fläche: 14,21 m², Gartenfläche: 90,34 m², Bundesland: Niederösterreich, 2 Etagen, Wohnungsnr.: 6
Dokumente
Anbieter der Immobilie
EHL Immobilien GmbH
Prinz-Eugen-Straße 8-10, 1040 WIEN
Online-ID: 2luh95z
Referenznummer: OBGC20240404111228854df1bcfc52e
Finde Angebote wie dieses
Günstige Immobilienfinanzierung einfach online berechnen
Persönliches Angebot berechnenWarum sehe ich diese Werbung? – Du siehst diese Werbung basierend auf Deiner Navigation auf unserer Website und der von Dir verwendeten Suchkriterien.
Diese Werbung wird bezahlt von durchblicker
Werbung melden
Hier geht es zu unserem Impressum, den Allgemeinen Geschäftsbedingungen, den Hinweisen zum Datenschutz und nutzungsbasierter Online-Werbung.