
Silvretta Immobilien GmbH & Co. KG
Frau Jennifer Böse
040 ···
Nr. anzeigenPreise & Kosten
Provision für Mieter
keine Courtage, Vermietung direkt vom Eigentümer
Warum sehe ich diese Anzeige? – Du siehst diese Anzeige basierend auf Ihrer Navigation auf unserer Website und den Suchkriterien, die du verwendet hast.
Lage
Die Ladenzeile befindet sich in einem attraktiven Wohngebiet mit gemischter Bebauung aus Einfamilien- und kleineren Mehrfamilienhäusern. Die Nachbarschaft ist lebendig und vielfältig – eine ausgewogene Mischung aus älteren und jüngeren Bewohnern sowie Familien.
In direkter Umgebung liegt das Hamburger Airport-Center...
Das Objekt
Baujahr
1957
Bezug
nach Vereinbarung
Details
Objektbeschreibung
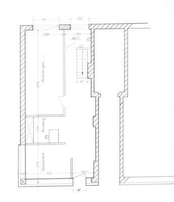
Die angebotene Gewerbefläche befindet sich in einer gut frequentierten Ladenzeile und umfasst insgesamt ca. 83,85 m², verteilt auf das Erdgeschoss und das Untergeschoss (Keller- bzw. Nebenräume).
Dank großzügiger Fensterflächen ist eine helle, einladende Atmosphäre gegeben – optimal für eine Praxis, ein Büro oder...
Preisinformation
Preisinformation
Betriebskostenvorauszahlung 122,00
Preisinformation
Erbbaurecht nicht vorhanden
Weitere Informationen
Sonstiges
Vorgesehen ist ein Staffelmietvertrag.
Heiz-, Wasser- und Stromkosten werden direkt mit den Versorgungsunternehmen abgerechnet und sind nicht in den Betriebskosten enthalten.
Nutzung
Die Gewerbefläche eignet sich nicht für Gastronomiebetriebe oder Supermärkte
Dokumente
Anbieter der Immobilie
Silvretta Immobilien GmbH & Co. KG
Gehlengraben 7a, 22415 Hamburg
Online-ID: 2lujr5l
Referenznummer: FL73
Finde Angebote wie dieses
Hier geht es zu unserem Impressum, den Allgemeinen Geschäftsbedingungen, den Hinweisen zum Datenschutz und nutzungsbasierter Online-Werbung.