Zentral gelegene 2-Zi. Neubau-EGT-Wohnung in Uehlfeld
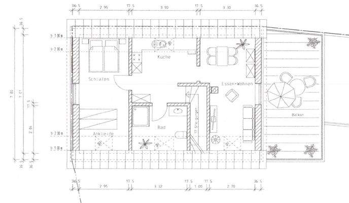
Diese gemütliche 2-Zi.-Wohnung mit ca. 72 m² befindet sich im DG eines Dreifamilienhauses und besticht durch ihre zentrale Lage in Uehlfeld. Sie bietet ein nach Süden ausgerichtetes Wohn-, Ess- und Küchenareal, von dem Sie auf den größzügigen Balkon gelangen, der perfekten Raum für Entspannung im Freien bietet. Neben einem komfortablen Schlafzimmer mit Ankleideraum sorgt das Tageslicht-Badezimmer mit großzügiger Dusche, für zusätzlichen Komfort. Die Vinyl-Böden können Sie ganz nach Ihren Wünschen für einen m²-Preis bis max. € 30,00 und bei den Fliesen bis max. € 50,00 ausgsuchen. Von der Wohnung gelangen Sie auch in den geräumigen Spitzboden, in dem Sie viele Möglichkeiten zur Lagerung haben. Eine Garage auf dem Grundstück kann erworben werden. Der Bezug ist voraussichtlich im Sommer 2026 möglich
Merkmale
Bezug: Sommer 2026
Dachgeschoss
offene Küche
Balkon
DSL-Anschluss
Badezimmer: Bad mit Dusche, Bad mit Fenster
Bodenbelag: Fliesen, Kunststoff
Grundrisse
Grundrisse
1 / 2
Realisiere Dein Projekt
Bausubstanz und Energie
Möchtest du Details zum Energieverbrauch?
Baujahr2025/26
Zustand der ImmobilieNeubau, Erstbezug
HeizungsartZentralheizung
EnergieträgerPellets
Preisdetails
Kaufpreis
231000 €231.000 €
3.208,33 €/m²
Provision für Käufer
provisionsfrei
Geschätzte Gesamtkosten
243.705 €1
Kaufpreis
231.000 €
Kaufnebenkosten
12.705 €
2
Notarkosten (1,5%)
3.465 €
Grunderwerbsteuer (3,5%)
8.085 €
Grundbucheintrag (0,5%)
1.155 €
1Der angezeigte Wert ist eine automatisch berechnete Schätzung von immowelt.
2Bei den Angaben handelt es sich um ortsübliche Werte. Individuelle Kosten können abweichen.
Lage
Uehlfeld (91486)
Der Anbieter hat die genaue Adresse nicht freigegeben
Die Lage dieser Wohnung ist besonders attraktiv, da eine gute Anbindung und Nahversorgung gegeben ist. Die nächste Bushaltestelle ist nur 180 Meter entfernt. Für Ihre täglichen Besorgungen liegen zwei Discounter fußläufig nur ca. 5 Minuten entfernt und sorgen für schnellen Zugang zu Lebensmitteln.
Bildungseinrichtungen wie Hort, Krippe und Kindergarten sowie Grund- und Mittelschul sind ebenfalls in der Nähe.
Weitere Informationen
Sonstiges
In Uehfeld, einer lebensfrohen Marktgemeinde mit etwa 3.000 Einwohnern, finden Sie einen Ort, der sowohl Ruhe als auch modernste Annehmlichkeiten bietet. Die hervorragende Verkehrsanbindung sorgt dafür, dass Sie in kurzer Zeit Städte wie Nürnberg und Würzburg erreichen können. Die idyllische Umgebung ist ideal für aktive Familien, während die zahlreichen Geschäfte, Ärzte und Bildungseinrichtungen den Alltag bequem gestalten. Zusammen mit vielfältigen Freizeitmöglichkeiten und den Möglichkeiten zur Vereinsaktivität, bietet dieser Standort eine harmonische Balance zwischen Landleben und urbanem Komfort.
Nutzen Sie die Vorzüge eines Lebens, das Aktivitäten im Freien mit kulinarischen Genüssen in den charmanten Gaststätten, die teils über eigene Brauereien verfügen, vereint.
Zögern Sie nicht! Lassen Sie sich von diesem einzigartigen Lebensstil begeistern und entdecken Sie die Vielfältigkeit, die Uehfeld zu bieten hat. Packen Sie die Gelegenheit beim Schopf und gestalten Sie Ihr neues Zuhause in dieser wunderbaren Gemeinde
Stichworte
Sonstiges/Wohnen: Dachboden
Versorgung: Städtische Wasserversorgung, Städtische Stromversorgung