
Rutz Immobilien GmbH
Herr Jan Lippert
004 ···
Nr. anzeigenPreise & Kosten
Provision für Käufer
2,98% (inkl. 19% MwSt.) vom beurkundeten Kaufpreis (Käuferprovision)
Lage
Die angebotene Doppelhaushälfte befindet sich in zentraler Wohnlage von Thedinghausen, einer charmanten Gemeinde im Landkreis Verden mit rund 8.000 Einwohnern. Die Umgebung ist geprägt von einer ruhigen, familienfreundlichen Nachbarschaft mit gepflegten Einfamilien- und Doppelhäusern.
Durch die gute Infrastruktur sind...
Das Haus
Kategorie
Doppelhaushälfte
Baujahr
2016
Bezug
nach Absprache
Derzeitige Nutzung
vermietet
Energie & Heizung
Warum sehe ich diese Anzeige? – Du siehst diese Anzeige basierend auf Ihrer Navigation auf unserer Website und den Suchkriterien, die du verwendet hast.
Energieausweistyp
Bedarfsausweis
Gebäudetyp
Wohngebäude
Baujahr laut Energieausweis
2016
Wesentliche Energieträger
ERDWAERME
Gültigkeit
bis 08.07.2026
Effizienzklasse
A+
Endenergiebedarf
13,70 kWh/(m²·a)
Weitere Energiedaten
Energieträger
Erdwärme
Heizungsart
Fußbodenheizung
Details
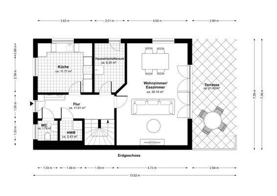
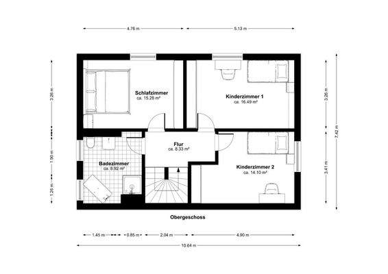
Objektbeschreibung
Diese moderne und neuwertige Doppelhaushälfte befindet sich in ruhiger Feldrandlage und überzeugt mit einer durchdachten Raumaufteilung, hochwertiger Ausstattung sowie einer energieeffizienten Haustechnik. Mit einer Wohnfläche von ca. 140 m² auf einem 479m² großen Grundstück bietet das Haus großzügigen Wohnkomfort für...
Ausstattung
+ Vermietet seit 2016
+ 3-fach verglaste Kunstofffenster (Ug=0,50) mit elekt. Rollläden
+ Erdwärmepumpe mit Erdreichflächenkollektoren (2016)
+ Fußbodenheizung
+ Be- und Entlüftungsanlage
+ Wäscheabwurfschacht
+ Betondecken bis ins Dachgeschoss
+ Glasfaseranschluss
+ SAT-Anschluss
+ Einbauküche mit...
Preisinformation
2 Stellplätze
Weitere Informationen
Sonstiges
Aktuelle Kaltmiete: 950,00 € (keine Mieterhöhung seit Einzug)
Bruttomietrendite: 3,02%
Faktor: ca. 33
Vermietet seit: 01.06.2016
Bei der aktuellen Miete von 6,79€/qm wird eine monatliche Kaltmiete von ca. 950€ (711.400€/Jahr) erzielt werden, was einer Bruttomietrendite von ca. 3,02% entspricht...
Anbieter der Immobilie
Rutz Immobilien GmbH
Schildstraße 8, 27753 Delmenhorst
Online-ID: 2luke56
Referenznummer: Ref.-Nr. 671
Finde Angebote wie dieses
Hier geht es zu unserem Impressum, den Allgemeinen Geschäftsbedingungen, den Hinweisen zum Datenschutz und nutzungsbasierter Online-Werbung.