

Eden-Ehbrecht Immobilien & Marketing GbR
Herr Ingo Eden
044 ···
Nr. anzeigenPreise & Kosten
Kaution
3 Nettokaltmieten
Provision für Mieter
2,38 Kaltmieten inklusive gesetzlicher Mehrwertsteuer von derzeit 19%. inkl. MwSt.
Abschreibung/Anlage
Denkmalschutz-Afa
Warum sehe ich diese Anzeige? – Du siehst diese Anzeige basierend auf Ihrer Navigation auf unserer Website und den Suchkriterien, die du verwendet hast.
Lage
Die Immobilie befindet sich in bester Innenstadtlage in der Oldenburger Fußgängerzone. Die Haupt-Einkaufsstraßen, Rathaus, Marktplatz, Schloss und diverse Parkmöglichkeiten befinden sich in Laufentfernung. Auch mit öffentlichen Verkehrsmitteln oder dem Fahrrad ist das Objekt einfach zu erreichen.
///// OLDENBURG // Gut...
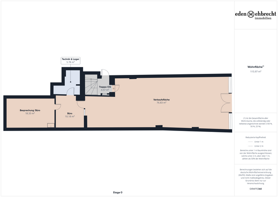
Die Ladenfläche
Kategorie
Verkaufsfläche
Baujahr
1869
Bezug
01.01.2026
Erdgeschoss
Energie & Heizung
Warum sehe ich diese Anzeige? – Du siehst diese Anzeige basierend auf Ihrer Navigation auf unserer Website und den Suchkriterien, die du verwendet hast.
Energieausweis: für diesen Gebäudetyp nicht notwendig
Details
Objektbeschreibung
Sie sind auf der Suche nach einer zentralen Gewerbefläche in attraktiver City-Lage? Dann ist dieses Angebot vielleicht schon genau das Richtige für Sie.
Das Objekt liegt in der Mitte der Schüttingstraße, eine Verbindungsstraße zwischen der Achternstraße und der Langestraße, die Einkaufsstraßen mit der höchsten...
Ausstattung
Die insgesamt ca. 220 qm große Gewerbefläche befindet sich inmitten der Oldenburger Innenstadt zwischen den zwei Haupt-Einkaufsstraßen.
Im Erdgeschoss steht Ihnen eine circa 75 qm große und ansprechend gestaltete Verkaufsfläche zur Verfügung. Fußboden in Holz-Optik, weiße Wand-Paneele, weiße Decken mit...
Weitere Informationen
Sonstiges
///// 25 JAHRE EDEN-EHBRECHT IMMOBILIEN
Seit 1999 sind wir bereits auf dem Oldenburger Immobilienmarkt tätig. Nutzen Sie unsere Erfahrung bei Verkauf, Vermietung und Vermarktung von Gewerbeimmobilien, Wohnimmobilien oder Anlageimmobilien.
///// MIETE & NEBENKOSTEN
Miete und Nebenkosten...
Anbieter der Immobilie

Online-ID: 2lumv5j
Referenznummer: 115920201#GJUNJ
Finde Angebote wie dieses
Hier geht es zu unserem Impressum, den Allgemeinen Geschäftsbedingungen, den Hinweisen zum Datenschutz und nutzungsbasierter Online-Werbung.