

Wohnung zum Kauf - Erstbezug369000 €3.982 €/m²4 Zimmer • 86,2 m² • 1. Geschoss
369000 €
3.982 €/m²
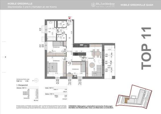
4 Zimmer • 86,2 m² • 1. Geschoss
4 -Zimmerwohnung, direkt beim Golfclub - hochwertig & naturnah
Merkmale
- 1. Geschoss
- Personenaufzug
- Terrasse
- Barrierefrei
Grundrisse
Grundrisse
1 / 1
Realisiere Dein Projekt
Bausubstanz und Energie
Heizwärmebedarf (HWB)
B
Gesamtenergieeffizienz (fGEE)
A+
- Baujahr2026
- Zustand der ImmobilieNeubau, Erstbezug
- HeizungsartFußbodenheizung
- EnergieträgerFernwärme, Solar
Preisdetails
Kaufpreis
369000 €
3.982,30 €/m²
Provision für Käufer
3% des Kaufpreises zzgl. 20% USt.
Lage

Kematen an der Krems (4531)
Weitere Informationen
Weitere Services
Lust auf eine Besichtigung?
Eine Frage zur Immobilie?
Über den Anbieter
OVB Allfinanzvermittlungs GmbHMaklerbüro
Sirone Straße 4/1/C, 5071 WALS B. SALZBURG
Partnerschaft
Frau Sara HufnaglDein Kontakt
Weitere Unterlagen
Online-ID: 2luyh5t
Referenznummer: OBGC202510101039495286b225ceaee
OVB Allfinanzvermittlungs GmbH
Wie zufrieden bist du mit dieser Seite (nicht mit der Immobilie selbst)?

