
Obermeier Immobilien
Herr Raimund Scheuerer
004 ···
Nr. anzeigenPreise & Kosten
Kaution
21.180,00 3 Monatsmieten
Provision für Mieter
3 Bruttomonatsmieten zzgl. MwSt. bei Vertragsabschluss fällig (ohne Energiekosten, inkl. Umlage) inkl. MwSt.
Warum sehe ich diese Anzeige? – Du siehst diese Anzeige basierend auf Ihrer Navigation auf unserer Website und den Suchkriterien, die du verwendet hast.
Lage
Die Verkaufsfläche liegt im aufstrebenden Südwesten Regensburgs.
Durch die hervorragende Anbindung an Autobahn und RVV ist der Standort sowohl für Kunden als auch für Mitarbeiter bequem erreichbar.
Die gute Sichtbarkeit und frequentierte Lage bieten ideale Voraussetzungen für einen erfolgreichen...
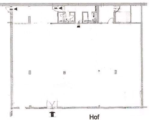
Die Ladenfläche
Kategorie
Verkaufsfläche
Baujahr
1976
Bezug
ab sofort
Details
Objektbeschreibung
Zur Vermietung steht eine attraktive Verkaufs- und Ladenfläche von ca. 570 m² im südwestlichen Teil Regensburgs. Die Anbindung an die Autobahn sowie an den öffentlichen Nahverkehr (RVV) ist ausgezeichnet.
Das Geschäftshaus wird über eine zentrale Gasheizung versorgt. Direkt vor dem Gebäude befinden sich ausreichend...
Ausstattung
Das Wichtigste im Überblick:
- Fläche: ca. 570 m² Verkaufs- und Ladenfläche
- Lage: südwestlicher Teil Regensburg, sehr gute Anbindung an Autobahn & RVV
- Parken: Kundenparkplätze direkt vor dem Gebäude
- Ausstattung:
- 2022 vollständig entkernt
- Zugänglich über verglaste Doppeltür + zwei...
Weitere Informationen
Sonstiges
Bitte teilen Sie uns Ihren Wunschtermin für die Besichtigung mit. Um die Terminplanung für alle Beteiligten so angenehm wie möglich zu gestalten, senden Sie uns bitte Ihre Terminvorschläge oder bevorzugten Wochentage mit Zeiträumen.
Nach einer erfolgreichen Besichtigung erhalten Sie alle erforderlichen...
Anbieter der Immobilie
Obermeier Immobilien
Donaustaufer Str. 170a, 93059 Regensburg
Online-ID: 2lv855s
Referenznummer: 738
Finde Angebote wie dieses
Hier geht es zu unserem Impressum, den Allgemeinen Geschäftsbedingungen, den Hinweisen zum Datenschutz und nutzungsbasierter Online-Werbung.