
Paul Pass & Sohn Immobilien & Hausverwaltung KG
Herr Ralph Pass
022 ···
Nr. anzeigenPreise & Kosten
Provision für Käufer
3,00 % zzgl. der gesetzlichen Mehrwertsteuer vom endgültigen Erwerbspreis
Lage
Deutz bildet zusammen mit der Kölner Altstadt und Neustadt den Stadtbezirk Köln-Innenstadt. Als lebendiger Stadtteil rechts des Rheins vereint Deutz urbanes Flair mit hoher Lebensqualität. Wichtige Institutionen wie die Lanxess Arena, die Kölner Messe, der Fernsehsender RTL und die größte Fachhochschule Deutschlands...
Das Renditeobjekt
Kategorie
Wohn- und Geschäftshaus
Baujahr
1970, 1972
Frei ab
vermietet
Geschosse
6 Geschosse
Energie & Heizung
Warum sehe ich diese Anzeige? – Du siehst diese Anzeige basierend auf Ihrer Navigation auf unserer Website und den Suchkriterien, die du verwendet hast.
Energieausweis 1 (Verbrauchsausweis)
Energieausweistyp
Verbrauchsausweis
Gebäudetyp
Wohngebäude
Baujahr laut Energieausweis
1999
Wesentliche Energieträger
Öl
Gültigkeit
20.10.2019 bis 19.10.2029
Effizienzklasse
B
Endenergieverbrauch
58,40 kWh/(m²·a)
Energieausweis 2 (Verbrauchsausweis)
Energieausweistyp
Verbrauchsausweis
Gebäudetyp
Wohngebäude
Baujahr laut Energieausweis
2006
Wesentliche Energieträger
Öl
Gültigkeit
14.12.2018 bis 14.12.2028
Effizienzklasse
G
Endenergieverbrauch
205,00 kWh/(m²·a)
Weitere Energiedaten
Energieträger
Öl
Heizungsart
Zentralheizung
Details
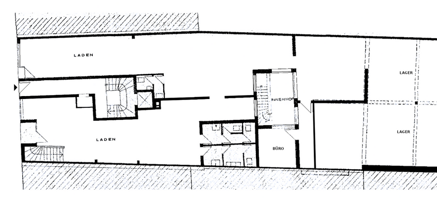
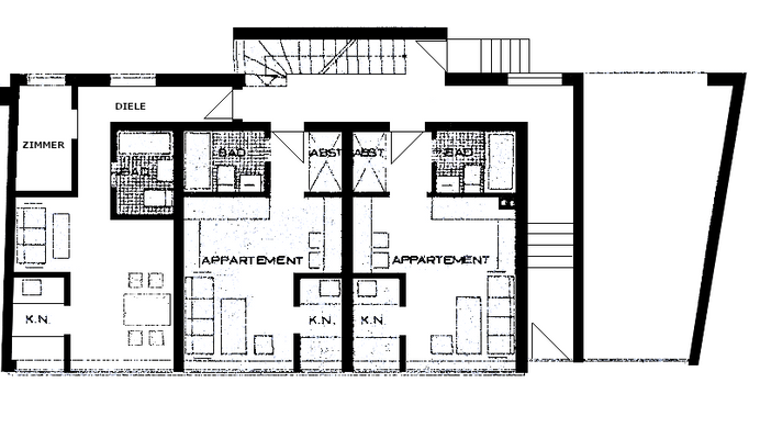
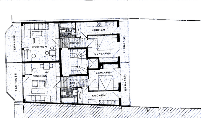
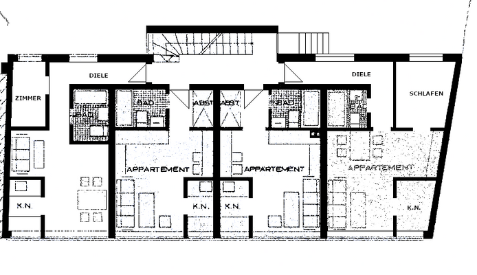
Objektbeschreibung
Objekt
Die Mehrparteienhäuser liegen in zentraler Rheinlage mit tollem, unverbautem Rheinblick, beziehungsweise zurückversetzt in ruhiger Anliegerstraße.
Bauweise in Mauerwerk/ Beton/ Stahlbeton, ca. 1.281,68 m² Wohn-/ Nutzfläche mit insgesamt 24 Wohneinheiten und Gewerbefläche.
2023 wurde bei einem der...
Weitere Informationen
Besichtigungstermine
nach Vereinbarung
Stichworte
Zustand: teilsaniert, gepflegt
Anbieter der Immobilie
Paul Pass & Sohn Immobilien & Hausverwaltung KG
Kaiser-Wilhelm-Ring 28, 50672 Köln
Online-ID: 2lvbc53
Finde Angebote wie dieses
Hier geht es zu unserem Impressum, den Allgemeinen Geschäftsbedingungen, den Hinweisen zum Datenschutz und nutzungsbasierter Online-Werbung.