

Gründer Immobilien
Herr Ralf Gründer
049 ···
Nr. anzeigenPreise & Kosten
Provision für Käufer
provisionsfrei
Lage
Lage - naturnah und dennoch zentral
Die Lage in Duisburg-Bergheim, in direkter Nachbarschaft zu Moers-Schwafheim, nahe dem Töppersee ist ein wahres Geschenk: Hier vereinen sich Natur, Freizeit und urbane Anbindung. Spaziergänge am Wasser, sportliche Aktivitäten oder einfach die Ruhe genießen - all das beginnt direkt...
Das Haus
Kategorie
Einfamilienhaus
Baujahr
2009
Bezug
nach Vereinbarung
Energie & Heizung
Warum sehe ich diese Anzeige? – Du siehst diese Anzeige basierend auf Ihrer Navigation auf unserer Website und den Suchkriterien, die du verwendet hast.
Weitere Energiedaten
Haustyp
Massivhaus
Heizungsart
Luft-/Wasser-Wärmepumpe
Details
Objektbeschreibung
Ein echtes Schmuckstück Nähe Töppersee - Wohnen auf höchstem Niveau
Willkommen in Ihrem neuen Zuhause - einem Einfamilienhaus, das durch Eleganz, Modernität und liebevolle Details überzeugt. Dieses im Jahr 2009 erbaute Massivhaus der renommierten Firma Vierbrockhaus befindet sich in einer begehrten Lage von...
Ausstattung
Wohnkomfort der Extraklasse
Mit einer Wohnfläche von ca. 142 m² bietet dieses Haus genügend Raum für die ganze Familie. Bereits beim Betreten spürt man die Exklusivität: Im Erdgeschoss prägen hochwertiger Naturschiefer und edles Feinsteinzeug das stilvolle Ambiente. Die Fußbodenheizung, betrieben durch eine effiziente...
Preisinformation
1 Stellplatz
1 Garagenstellplatz
Weitere Informationen
Sonstiges
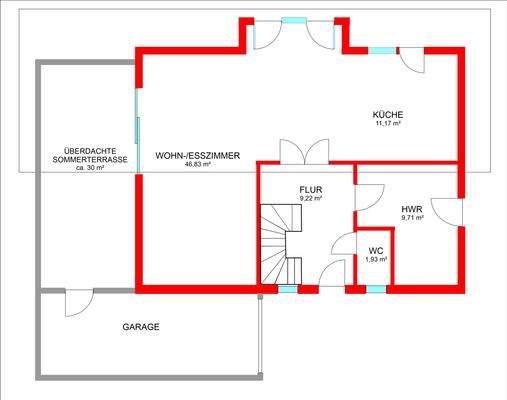
Wohnflächenaufteilung:
Erdgeschoss:
Diele ca. 9,22 m²
Wohn-Esszimmer ca. 46,83 m²
offene Küche ca. 11,17 m²
Hauswirtschaftsraum ca. 9,71 m²
Gäste-WC ca. 1,93 m²
Obergeschoss:
Flur/Empore ca. 6,90 m²
Schlafzimmer ca. 17,31 m²
Ankleidezimmer ca. 14,15 m²
Schlafzimmer ca...
Anbieter der Immobilie
Gründer Immobilien
Haupstraße 97, 26892 Dörpen

Online-ID: 2lvdx5v
Referenznummer: 8430#CMHriC
Finde Angebote wie dieses
Hier geht es zu unserem Impressum, den Allgemeinen Geschäftsbedingungen, den Hinweisen zum Datenschutz und nutzungsbasierter Online-Werbung.