

Ketelsen & Rösch Immobilien & Finanzcoaching oHG
Herr Volker Rösch
+49 ···
Nr. anzeigenPreise & Kosten
Verhandlungsbasis
Provision für Käufer
4,76 % Käuferprovision inkl. der gesetzlichen MwSt. verdient und fällig mit Beurkundung des notariellen Kaufvertrages.
Lage
Die gepflegte Doppelhaushälfte befindet sich in ruhiger Lage am Rande des äußerst beliebten Stadtteils Groß Tarup. Dieser Stadtteil ist besonders bei Familien und Berufstätigen aufgrund seiner hervorragenden Infrastruktur und der naturnahen Umgebung sehr geschätzt.
In unmittelbarer Nähe finden sich zahlreiche...
Das Haus
Kategorie
Mehrfamilienhaus
Baujahr
2015
Derzeitige Nutzung
vermietet
Energie & Heizung
Warum sehe ich diese Anzeige? – Du siehst diese Anzeige basierend auf Ihrer Navigation auf unserer Website und den Suchkriterien, die du verwendet hast.
Energieausweistyp
Verbrauchsausweis
Gebäudetyp
Wohngebäude
Baujahr laut Energieausweis
2015
Wesentliche Energieträger
Fernheizung
Gültigkeit
10.03.2015 bis 11.03.2035
Effizienzklasse
B
Endenergieverbrauch
63,40 kWh/(m²·a) - Warmwasser enthalten
Weitere Energiedaten
Haustyp
KfW 40, Massivhaus
Energieträger
Fernwärme
Heizungsart
Fußbodenheizung
Details
Objektbeschreibung
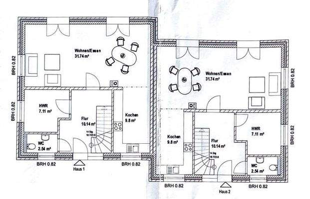
Zum Verkauf steht ein modernes Doppelhaus mit zwei identisch gebauten Haushälften, das sich ideal für Mehrgenerationenwohnen, als Kapitalanlage oder zur Kombination von Wohnen und Vermieten eignet. Die Immobilie bietet eine Gesamtwohnfläche von ca. 244 m² und ist aktuell vollständig und solide vermietet. Jede Haushälfte...
Weitere Informationen
PROVISIONSPASSUS
4,76% Käuferprovision inkl. der gesetzlichen MwSt. verdient und fällig mit Beurkundung des notariellen Kaufvertrages.
Haben wir Ihr Interesse geweckt, dann fordern Sie ein Exposé an auf: www.ketelsen-roesch.de oder rufen Sie uns an.
Jeder Mensch braucht ein Zuhause, darum suchen wir Ihre...
Anbieter der Immobilie

Online-ID: 2lvea5g
Referenznummer: 2025246
Finde Angebote wie dieses
Hier geht es zu unserem Impressum, den Allgemeinen Geschäftsbedingungen, den Hinweisen zum Datenschutz und nutzungsbasierter Online-Werbung.