
Immocenter Ungarn | Hotel Consulting Meyer Kft
Frau Katalin Kovacs
+36 ···
Nr. anzeigenPreise & Kosten
Kaution
2 Monatsmieten
Provision für Mieter
provisionsfrei
Warum sehe ich diese Anzeige? – Du siehst diese Anzeige basierend auf Ihrer Navigation auf unserer Website und den Suchkriterien, die du verwendet hast.
Lage
Kehidakustány - Thermenidylle im Zala-Tal, ganz nah am Balaton
Kehidakustány ist berühmt für sein Kehida Termál Heil- & Erlebnisbad: ein weitläufiges Thermal-Resort mit Innen-/Außenbecken, Rutschen und Saunawelt - ideal für Wellness, Familien und Ganzjahresbadetag.
Im Ort erinnert die Deák-Ferenc-Kúria an...
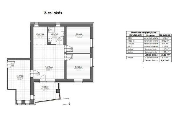
Die Wohnung
Wohnungslage
1. Geschoss (Erdgeschoss)
Wohnanlage
Energie & Heizung
Warum sehe ich diese Anzeige? – Du siehst diese Anzeige basierend auf Ihrer Navigation auf unserer Website und den Suchkriterien, die du verwendet hast.
Weitere Energiedaten
Energieträger
Gas
Heizungsart
Fußbodenheizung, Zentralheizung
Details
Objektbeschreibung
In Kehidakustány, Komitat Zala, vermieten wir in unserem 4-Familien-Apartmenthaus geräumige, helle, neu gebaute Wohnhäuser in unmittelbarer Nähe des Flusses Zala und des Radwegs.
Das Anwesen liegt in einer wunderschön angelegten, ruhigen Umgebung. In einem Gebiet mit vollständiger öffentlicher Versorgung und...
Ausstattung
Alle Anschlüsse vorhanden
Preisinformation
Kaution: 2 Monatsmieten, 1 Stellplatz
Weitere Informationen
Sonstiges
?? Ganz gleich, ob Sie eine Immobilie in Ungarn kaufen möchten oder Ihre Liegenschaft verkaufen wollen: Immocenter Ungarn ist Ihr kompetenter und vertrauensvoller Partner direkt vor Ort. Mit unserer langjährigen Erfahrung, exzellenter Marktkenntnis und persönlicher Betreuung begleiten wir Sie sicher und...
Anbieter der Immobilie
Immocenter Ungarn | Hotel Consulting Meyer Kft
Fö U. 122, 8394 Alsopahok | Héviz
Online-ID: 2lvg35y
Referenznummer: KK007-M
Finde Angebote wie dieses
Hier geht es zu unserem Impressum, den Allgemeinen Geschäftsbedingungen, den Hinweisen zum Datenschutz und nutzungsbasierter Online-Werbung.