
Dobbertimmobilien
Herr Markus Dobbert
004 ···
Nr. anzeigenPreise & Kosten
Provision für Käufer
3,57
Lage
Willkommen im historischen Herzen von Schwäbisch Hall - einem Ort, an dem Geschichte lebendig ist und Lebensqualität großgeschrieben wird. Das Grundstück liegt im historischen Viertel, dort, wo Kopfsteinpflaster und Kultur sich begegnen, wo die Aussicht weit über die Stadt reicht und das Leben noch Seele hat. Hier sind Sie...
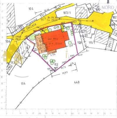
Das Grundstück
Details
Objektbeschreibung
Es gibt Orte, die man betritt - und Orte, die man fühlt. Dieses Baugrundstück gehört zweifellos zu Letzteren.
In erhabener Lage von Schwäbisch Hall, mit einem atemberaubenden Panoramablick über die historische Altstadt von Schwäbisch Hall, präsentiert sich dieses Grundstück als wahres Schmuckstück - einzigartig in seiner...
Ausstattung
Dieses Grundstück ist bereit, Großes zu tragen. Die genehmigte Planung ermöglicht moderne, lichtdurchflutete Wohnungen mit großzügigen Grundrissen, durchdachten Details und unvergleichlicher Aussicht. Jeder Quadratmeter dieses Projekts strahlt Wertigkeit aus - ein Ort, an dem Architektur zur Emotion wird.
Ob als...
Weitere Informationen
Stichworte
Distanz zum Kindergarten: 6.00, Distanz zur Grundschule: 5.00, Distanz zur Realschule: 3.50, Distanz zum Gymnasium: 3.20, Distanz zur Autobahn: 15.00, Distanz vom Zentrum: 4.20
Anbieter der Immobilie

Dobbertimmobilien
Schlossgärten 22, 74423 Obersontheim
Online-ID: 2lvlc5w
Referenznummer: 2025-00758
Finde Angebote wie dieses
Hier geht es zu unserem Impressum, den Allgemeinen Geschäftsbedingungen, den Hinweisen zum Datenschutz und nutzungsbasierter Online-Werbung.