
RE/MAX Real Estate Center
Herr Fabrice Mehrbreier
004 ···
Nr. anzeigenPreise & Kosten
zzgl. Nebenkosten
Kaution
2 Nettokaltmieten
Provision für Mieter
Bitte beachte, das Angebot kann bei Vertragsabschluss die Zahlung einer Provision beinhalten. Weitere Informationen erhältst Du vom Anbieter.
Warum sehe ich diese Anzeige? – Du siehst diese Anzeige basierend auf Ihrer Navigation auf unserer Website und den Suchkriterien, die du verwendet hast.
Lage
Der Gewerbepark Kaiserslautern-Haderwald zählt zu den attraktivsten und etabliertesten Gewerbestandorten der Westpfalz. Durch seine hervorragende Verkehrsanbindung direkt an die Autobahn A6 (Mannheim-Saarbrücken) sowie die Nähe zur B37 und B270 bietet der Standort eine optimale Erreichbarkeit für Kunden, Lieferanten und...
Die Industriefläche
Kategorie
Werkstatt
Baujahr
2015
Details
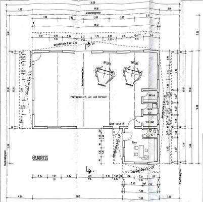
Objektbeschreibung
Diese gepflegte und flexibel nutzbare Gewerbeeinheit im etablierten Gewerbegebiet Kaiserslautern-Haderwald bietet ideale Voraussetzungen für Handwerksbetriebe, Fahrzeughandel oder Dienstleistungsunternehmen.
Die Gesamtfläche umfasst rund 213 m², aufgeteilt in eine großzügige Werkstattfläche von ca. 179 m² sowie Büro-...
Preisinformation
Provisionsfrei
Weitere Informationen
Stichworte
Lagerfläche: 179,91 m², Gesamtfläche: 214,00 m², Bundesland: Rheinland-Pfalz
Anbieter der Immobilie

RE/MAX Real Estate Center
Online-ID: 2lvlm5u
Referenznummer: HW3500M
Finde Angebote wie dieses
Hier geht es zu unserem Impressum, den Allgemeinen Geschäftsbedingungen, den Hinweisen zum Datenschutz und nutzungsbasierter Online-Werbung.