

Papst Immobilien GmbH
Herr Patrick Großschädl
065 ···
Nr. anzeigenPreise & Kosten
inkl. Betriebskosten
Kaution
3 BMM Überweisung
Provision für Mieter
provisionsfrei EUR inkl. 20% MwSt.
Warum sehe ich diese Anzeige? – Du siehst diese Anzeige basierend auf Ihrer Navigation auf unserer Website und den Suchkriterien, die du verwendet hast.
Die Wohnung
Wohnungslage
4. Geschoss
Bezug
ab sofort
Wohnanlage
Energie & Heizung
Warum sehe ich diese Anzeige? – Du siehst diese Anzeige basierend auf Ihrer Navigation auf unserer Website und den Suchkriterien, die du verwendet hast.
Heizwärmebedarf (HWB)
115,20 kWh/(m²·a)
Gesamtenergieeffizienz (fGEE)
1,67
Weitere Energiedaten
Energieträger
Fernwärme
Details
Objektbeschreibung
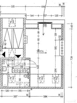
Bezirk Jakomini, ideale Wohnung für Studenten, Single's in Sanierung
Aufteilung: Vorraum, Bad mit WC, Wohn-Ess-Küche.
Miete inkl. BK: 550 € ohne HK
Kaufpreis: 129.900 .-
Verfügbar ab sofort
Gerne übermitteln wir Ihnen nähere Informationen, Grundriss sowie einen Videorundgang auf schriftliche...
Preisinformation
inkl. BK ohne Küche ohne HK, Nettokaltmiete: 370,00 EUR
Weitere Informationen
Stichworte
Gesamtfläche: 40,72 m², Anzahl der Badezimmer: 1, Anzahl der Wohneinheiten: 13, Bundesland: Steiermark, 4 Etagen
Anbieter der Immobilie
Papst Immobilien GmbH
Grazer Straße 48, 8101 Gratkorn

Online-ID: 2lvlr5e
Referenznummer: O2100163831
Finde Angebote wie dieses
Hier geht es zu unserem Impressum, den Allgemeinen Geschäftsbedingungen, den Hinweisen zum Datenschutz und nutzungsbasierter Online-Werbung.