
Immowestpfalz Immobilien Herr Quanz
Herr Johannes Quanz
004 ···
Nr. anzeigenPreise & Kosten
Provision für Käufer
3,57% Provision inkl. 19% MwSt. zzgl. MwSt.
Lage
Diese Immobilie liegt idyllisch am Ende einer ruhigen Sackgasse - in einer der begehrtesten und ruhigsten Wohnlagen von Pirmasens. Hier genießen Sie nicht nur absolute Privatsphäre, sondern auch die perfekte Balance zwischen naturnahem Wohnen und städtischer Erreichbarkeit. Die Innenstadt von Pirmasens sowie die...
Das Haus
Kategorie
Doppelhaushälfte
Baujahr
1970
Energie & Heizung
Warum sehe ich diese Anzeige? – Du siehst diese Anzeige basierend auf Ihrer Navigation auf unserer Website und den Suchkriterien, die du verwendet hast.
Energieausweistyp
Bedarfsausweis
Gebäudetyp
Wohngebäude
Baujahr laut Energieausweis
1970
Wesentliche Energieträger
GAS
Gültigkeit
bis 29.07.2035
Effizienzklasse
F
Endenergiebedarf
170,68 kWh/(m²·a)
Weitere Energiedaten
Energieträger
Gas
Heizungsart
Zentralheizung
Details
Objektbeschreibung
Willkommen in Ihrem neuen Zuhause - modernisiert, gepflegt und bezugsfertig!
Bereits beim Eintreten überzeugt der 2024 vollständig sanierte Eingangsbereich mit neuer Haustür und modernen grauen Fliesen. Dieses charmante Einfamilienhaus vereint modernen Wohnkomfort, durchdachte Raumaufteilung und einen idyllischen Garten -...
Ausstattung
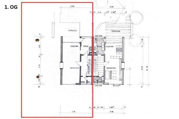
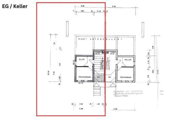
Erdgeschoss / Kellergeschoss (Nutzfläche) Gesamtbreite der Haushälfte: 6,88?m Gesamttiefe: ca. 10,50?m ? Grundfläche EG/Keller (brutto): ca. 72,3?m² (6,88?m × 10,50?m) Räume lt. Plan: Keller Vorratsraum / Trockenraum Wasch- / Heizraum (W.F.) Zugang zum Garten vorhanden ? Diese Etage zählt überwiegend zur...
Preisinformation
1 Garagenstellplatz
Weitere Informationen
Stichworte
Anzahl Terrassen: 1, 3 Etagen, modernisiert
Anbieter der Immobilie
Immowestpfalz Immobilien Herr Quanz
Blumenstraße 20, 66953 Pirmasens
Online-ID: 2lvqj5y
Referenznummer: 158454284
Finde Angebote wie dieses
Hier geht es zu unserem Impressum, den Allgemeinen Geschäftsbedingungen, den Hinweisen zum Datenschutz und nutzungsbasierter Online-Werbung.