
Raumgefühl Immobilien GbR Sandy Rötzsch & Mandy Müller
Team Raumgefühl Immobilien Frau Mandy Müller
+49 ···
Nr. anzeigenPreise & Kosten
Provision für Käufer
3,57%
Mit der Anfrage über Raumgefühl Immobilien GbR und der Inanspruchnahme Ihrer Dienstleistung, wird ein Maklervertrag geschlossen. Weitere Informationen siehe Provisionshinweis.
Lage
Borsdorf ist ein Vorort von Leipzig und überzeugt mit viel Natur, aber auch mit einer sehr guten Infrastrucktur, sowie der Nähe zur Metropole Leipzig.
VERKEHR
Die Gemeinde Borsdorf liegt ca. 5 km östlich vom Leipziger Stadtzentrum, wo Autofahrer von der schnellen Erreichbarkeit der B6 sowie der A14...
Das Renditeobjekt
Baujahr
1993
Frei ab
vermietet
Geschosse
1 Geschoss
Energie & Heizung
Warum sehe ich diese Anzeige? – Du siehst diese Anzeige basierend auf Ihrer Navigation auf unserer Website und den Suchkriterien, die du verwendet hast.
Energieausweistyp
Verbrauchsausweis
Gebäudetyp
Wohngebäude
Wesentliche Energieträger
Erdgas leicht
Gültigkeit
20.12.2017 bis 19.12.2027
Effizienzklasse
B
Endenergieverbrauch
73,00 kWh/(m²·a)
Details
Objektbeschreibung
Die parkähnliche Anlage mit vielen Grünflächen realisiert Träume gestresster Städter, die sich in der grünen Anlage sehr wohlfühlen.
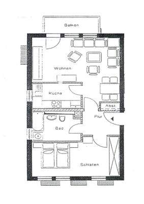
Die lichtdurchflutete Eigentumswohnung befindet sich im 1. Obergeschoss eines ca. 1993 erbauten Mehrfamilienhauses mit 6 Wohneinheiten. Die 2-Raumwohnung umfasst eine Wohnfläche von ca...
Ausstattung
- Tageslichtbad
- großer Balkon
- Stellplatz unter überdachtem Parkdeck
- Keller
Die Erhaltungsrücklage mit Stand vom 31.12.2023 liegt gesamt bei 711.516,44€ und liegt damit anteilig bei 4.269,09€ der WE 43.
Preisinformation
Nettorendite Ist in %: 4,42
Nettorendite Soll in %: 5,09
Soll-Mieteinnahmen pro Jahr: 7.631,40 EUR
Ist-Mieteinnahmen pro Jahr: 6.636,00 EUR
Weitere Informationen
Provisionshinweis
3,57%
Mit der Anfrage über Raumgefühl Immobilien GbR und der Inanspruchnahme Ihrer Dienstleistung, wird ein Maklervertrag geschlossen. Sofern es durch die Tätigkeit von Raumgefühl Immobilien zu einem wirksamen Hauptvertrag mit der Eigentümerseite kommt, hat der Interessent bei Abschluss eines...
Anbieter der Immobilie
Online-ID: 2lvqv5g
Referenznummer: ETW-RG-5_1
Finde Angebote wie dieses
Hier geht es zu unserem Impressum, den Allgemeinen Geschäftsbedingungen, den Hinweisen zum Datenschutz und nutzungsbasierter Online-Werbung.