
EHL Immobilien GmbH
Frau Andrea PÖCHHACKER; MSc
+43 ···
Nr. anzeigenPreise & Kosten
Provision für Käufer
Provision bezahlt der Abgeber.
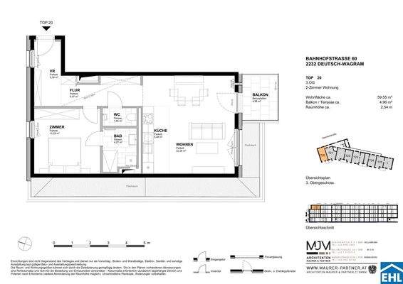
Die Wohnung
Wohnungslage
3. Geschoss
Bezug
sofort
Wohnanlage
Energie & Heizung
Warum sehe ich diese Anzeige? – Du siehst diese Anzeige basierend auf Ihrer Navigation auf unserer Website und den Suchkriterien, die du verwendet hast.
Heizwärmebedarf (HWB)
27,00 kWh/(m²·a)
Gesamtenergieeffizienz (fGEE)
0,75
Weitere Energiedaten
Energieträger
Fernwärme
Heizungsart
Fußbodenheizung
Details
Objektbeschreibung
Wohnen im Weinviertel - Ihr Investment mit Perspektive
Erleben Sie die perfekte Balance zwischen naturnahem Wohnen und städtischer Infrastruktur: Unsere modernen Eigentumswohnungen im idyllischen Weinviertel bieten Ihnen nicht nur eine attraktive Lebensqualität, sondern auch hervorragendes Potenzial für nachhaltige...
Preisinformation
1 Stellplatz
Weitere Informationen
Stichworte
Süd-Balkon/Terrasse, Anzahl der Badezimmer: 1, Anzahl der separaten WCs: 1, Anzahl Loggias: 1, Balkon-Terrassen-Fläche: 4,96 m², Bundesland: Niederösterreich, 4 Etagen, Wohnungsnr.: 20
Dokumente
Anbieter der Immobilie
EHL Immobilien GmbH
Prinz-Eugen-Straße 8-10, 1040 WIEN
Online-ID: 2lvsl5g
Referenznummer: OBGC202411211205300870364791b3c
Finde Angebote wie dieses
Günstige Immobilienfinanzierung einfach online berechnen
Persönliches Angebot berechnenWarum sehe ich diese Werbung? – Du siehst diese Werbung basierend auf Deiner Navigation auf unserer Website und der von Dir verwendeten Suchkriterien.
Diese Werbung wird bezahlt von durchblicker
Werbung melden
Hier geht es zu unserem Impressum, den Allgemeinen Geschäftsbedingungen, den Hinweisen zum Datenschutz und nutzungsbasierter Online-Werbung.