

Aengevelt Immobilien GmbH & Co KG
Herr Tobias Barth
+49 ···
Nr. anzeigenPreise & Kosten
Provision für Mieter
provisionsfrei
Warum sehe ich diese Anzeige? – Du siehst diese Anzeige basierend auf Ihrer Navigation auf unserer Website und den Suchkriterien, die du verwendet hast.
Lage
Im Norden Leipzigs im Stadtteil Wiederitzsch direkt an der A14 (Abfahrt Leipzig-Mitte) und der Neuen Messe gelegen. Über die B2 Leipziger Innenstadt und Hauptbahnhof in ca. 10 Fahrminuten erreichbar. ÖPNV-Anbindung in unmittelbarer Nähe. Flughafen Leipzig-Halle in ca. 10 Fahrminuten entfernt.
Büro-/Praxisfläche
Kategorie
Bürokomplex
Baujahr
1996
Bezug
sofort
Energie & Heizung
Warum sehe ich diese Anzeige? – Du siehst diese Anzeige basierend auf Ihrer Navigation auf unserer Website und den Suchkriterien, die du verwendet hast.
Wärme
Strom
Energieausweistyp
Verbrauchsausweis
Gebäudetyp
Nicht-Wohngebäude
Baujahr laut Energieausweis
1996
Wesentliche Energieträger
Gas
Gültigkeit
seit 08.03.2009
Endenergieverbrauch (Wärme)
157,70 kWh/(m²·a)
Endenergieverbrauch (Strom)
13,40 kWh/(m²·a)
Weitere Energiedaten
Energieträger
Gas
Heizungsart
Zentralheizung
Details
Objektbeschreibung
Im Norden Leipzigs, direkt an der "Neuen Messe", befindet sich der Fugger Business Park, eine der renommierten Geschäftsadressen der Stadt. Die Liegenschaft ist ein überschaubarer, lichtdurchfluteter Bürokomplex mit moderner und ansprechender Architektur. Die hervorragende infrastrukturelle Anbindung unterstreicht die...
Ausstattung
weitere Ausstattungshighlights
- funktionaler Bürokomplex
- repräsentative Eingangs- und Treppenhausgestaltung mittels hochwertiger Materialien
- behindertengerechte Aufzüge
- Raumaufteilung nach Mieterwunsch gestaltbar
- Deckenhöhe ca. 2,75; EG ca. 3,25 m
- Kanalsystem für...
Weitere Informationen
Stichworte
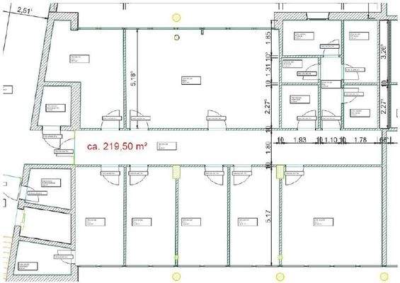
Gesamtfläche: 11.000,00 m², 5 Etagen
Anbieter der Immobilie
Aengevelt Immobilien GmbH & Co KG
Kennedydamm 55/Ross-Strasse, 40476 Düsseldorf

Online-ID: 2lvtq5r
Referenznummer: 39000
Finde Angebote wie dieses
Hier geht es zu unserem Impressum, den Allgemeinen Geschäftsbedingungen, den Hinweisen zum Datenschutz und nutzungsbasierter Online-Werbung.