

Doppelhaushälfte zum Kauf • provisionsfrei699400 €5.079 €/m²5 Zimmer • 136,2 m² • 249 m² Grundstück • frei ab sofort
699400 €
5.079 €/m²
5 Zimmer • 136,2 m² • 249 m² Grundstück • frei ab sofort
Neubau-Doppelhaushälfte in Feldrandlage mit Garten und Freisitz – Einziehen & Wohlfühlen
Merkmale
- frei ab sofort
- 2 Geschosse
- 249 m² Grundstück
- offene Küche
- Keller
- 2 Stellplätze: Außen-Stellplatz
- Gäste-WC
- Garten
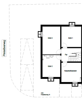
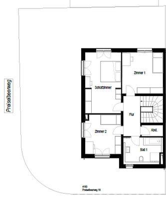
Grundrisse
Grundrisse
1 / 3
Realisiere Dein Projekt
Bausubstanz und Energie
Energieausweis
A+
- Baujahr2024
- Zustand der ImmobilieNeubau
- HaustypKfW 55
- HeizungsartZentralheizung: Fußbodenheizung
- EnergieträgerFernwärme, Luft-/Wasser-Wärmepumpe
Preisdetails
Kaufpreis
699400 €
5.079 €/m²
Preis pro Stellplatz
5000 €
Provision für Käufer
provisionsfrei
Geschätzte Gesamtkosten
748.358 €1
Kaufpreis
699.400 €
Kaufnebenkosten
48.958 €
2Notarkosten (1,5%)
10.491 €
Grunderwerbsteuer (5%)
34.970 €
Grundbucheintrag (0,5%)
3.497 €
1Der angezeigte Wert ist eine automatisch berechnete Schätzung von immowelt.
2Bei den Angaben handelt es sich um ortsübliche Werte. Individuelle Kosten können abweichen.
Lage

Preiselbeerweg 16, Lützelsachsen, Weinheim (69469)
Weitere Informationen
Weitere Services
Lust auf eine Besichtigung?
Eine Frage zur Immobilie?
Über den Anbieter
Tröndle Immobilienverwaltung GmbHMaklerbüro
Mannheimer Str. 54, 68535 Edingen-Neckarhausen
Frau Manuela KochDein Kontakt
Online-ID: 2lvut5b
Referenznummer: 236-16

Tröndle Immobilienverwaltung GmbH
Wie zufrieden bist du mit dieser Seite (nicht mit der Immobilie selbst)?