
Aengevelt Immobilien GmbH & Co KG
Herr Stephan Gödeke
+49 ···
Nr. anzeigenPreise & Kosten
Provision für Mieter
provisionsfrei
Warum sehe ich diese Anzeige? – Du siehst diese Anzeige basierend auf Ihrer Navigation auf unserer Website und den Suchkriterien, die du verwendet hast.
Lage
Das Bürogebäude befindet sich in hervorragender Innenstadtlage, zwischen der bekannten Fußgängerzone "Neue Kräme" und der umsatzstarken und stark frequentierten Einkaufsstraße Zeil. In fußläufiger Entfernung erreichen Sie bequem die U- und S-Bahn Station "Hauptwache", die Ihnen in nur wenigen Minuten einen Anschluß an den...
Büro-/Praxisfläche
Kategorie
Bürofläche
Baujahr
1974
Bezug
nach Vereinbarung
Energie & Heizung
Warum sehe ich diese Anzeige? – Du siehst diese Anzeige basierend auf Ihrer Navigation auf unserer Website und den Suchkriterien, die du verwendet hast.
Wärme
Strom
Energieausweistyp
Bedarfsausweis
Gebäudetyp
Nicht-Wohngebäude
Baujahr laut Energieausweis
1974
Wesentliche Energieträger
Erdgas leicht
Gültigkeit
seit 22.11.2022
Endenergiebedarf (Wärme)
50,00 kWh/(m²·a)
Endenergiebedarf (Strom)
33,00 kWh/(m²·a)
Weitere Energiedaten
Energieträger
Gas
Details
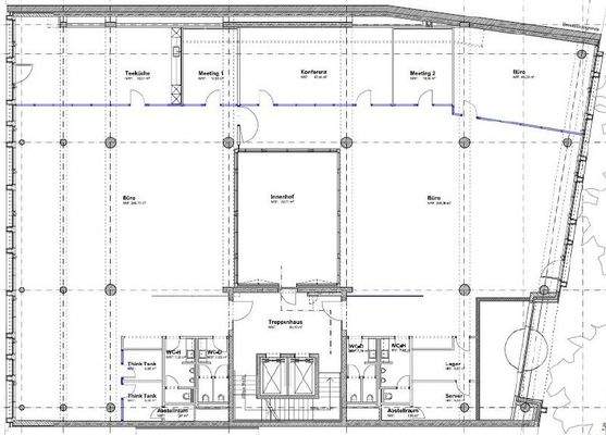
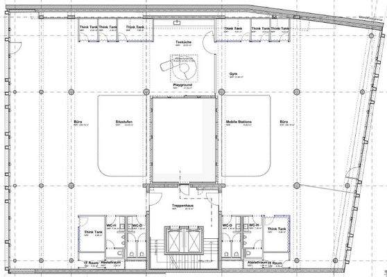
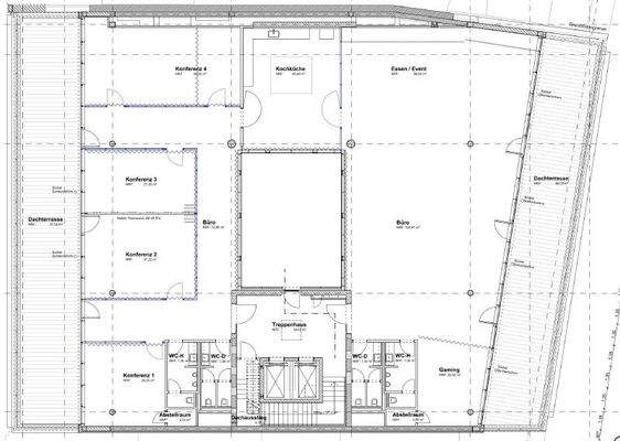
Objektbeschreibung
Das moderne Bürogebäude wurde im Jahr 2022 vollständig entkernt und umfassend renoviert. Über den großzügig und hell gestalteten Eingangsbereich betreten Sie das Haus auf repräsentative Weise. Zwei komfortable Personenaufzüge ermöglichen einen schnellen und barrierearmen Zugang zu den einzelnen Etagen. Die Büroflächen selbst...
Ausstattung
Die Immobilie besticht durch ihre Ausstattung nach modernstem Gebäudestandard und schafft ein attraktives, zeitgemäßes Arbeitsumfeld. Großzügige, öffenbare bodentiefe Fenster sorgen für helle, freundliche Räume und ermöglichen eine angenehme natürliche Belüftung. Eine Teeküche steht den Mietern zur Verfügung und bietet...
Weitere Informationen
Stichworte
Stellplatz vorhanden, Gesamtfläche: 4.283,00 m², 5 Etagen, modernisiert: 2022
Sonstiges: EDV-Verkabelung
Anbieter der Immobilie
Aengevelt Immobilien GmbH & Co KG
Kennedydamm 55/Ross-Strasse, 40476 Düsseldorf
Online-ID: 2lvxq5r
Referenznummer: 39390
Finde Angebote wie dieses
Hier geht es zu unserem Impressum, den Allgemeinen Geschäftsbedingungen, den Hinweisen zum Datenschutz und nutzungsbasierter Online-Werbung.